This site uses cookies.  To know more read our privacy policy.
Sign up to receive updates.  
terms  
Sign up to receive updates.Sign up
Burning Farm
Dwelling on Absence
Minor Architecture and the Project of Moroccan Habitat

Reda BerradaIssue 24September 2025ReadCite

Plan of a typical dwelling in: a. the Habous quarter in Casablanca; b. the Trame Écochard 8 x 8 at the Carrières Centrales in Casablanca; c. the Semiramis building type, at the Carrières Centrales in Casablanca; d. the Habitat Marocain building type N in Sidi Othmane, Casablanca; e. the Behive building type at the Carrières Centrales in Casablanca; and f. the BTS-67 operation in Ouarzazate. Drawn by the author.

Minor architecture is Architecture’s other:⁠ the non-monumental, non-authored domestic architecture resulting from social opportunities” and mutual nuisances” according to function, land ownership, production, rules, techniques, and forms.⁠ Despite an abundance of documentation on this tradition, a historiographical systematization of minor architecture is still absent.⁠ Indeed, a history of minor architecture cannot be established based on the study of isolated buildings, elements, or ornaments but rather only through its relationship to modernity as expressed in contemporary architecture and urban planning practices.⁠ To this end, the present essay examines mass housing projects undertaken by Moroccan state agencies over the twentieth century (1912–1975) through the lens of minor architecture. It argues that mass-produced housing in Morocco was legitimized through its dialectic with vernacular matter, as an expression of Moroccan identity: the Habitat Marocain (Moroccan Habitat).⁠

The term, which appeared in the debates of the 1930s, borrowing from geographers and the notion of adapted habitat,” referred to what needed to be done: build housing for the native population of Morocco, which had been neglected for decades by the French Protectorate.⁠ A government policy which, despite its inherently racist logic, embodied a middle ground: halfway between the universal and the regional, between high culture and everyday life, the project of Moroccan Habitat is an instance of middling modernism,” one defined by social technicians—the likes of architects and engineers—through the design and articulation of norms mediated by the documentation, representation, and circulation of minor architecture, which constitute the main historiographical evidence of this essay.⁠

PRESERVATION AND THE PICTURESQUE

The colonial era in Morocco (1912–1956) does not mark the beginning of the country’s modern era but rather a moment of discontinuity in the endogenous practices of architecture and building that produced cities and villages.⁠ This planned discontinuity is key to understanding housing policies by the Protectorate, later inherited by the independent Moroccan state and its institutions.

If the stated primary mission of the Protectorate was to safeguard Morocco’s integrity, then the protection of its cultural heritage was seen as instrumental for its legitimation. For instance, the Service des Beaux-Arts et des Monuments Historiques, which was created for this purpose in 1912 and was composed mainly of orientalist architects and painters,⁠ introduced the French notion of historical monuments” and their inventory.⁠ Listed buildings from then on were to be preserved in their original state or restored according to models kept in the museums of Rabat, Salé, Fez, and Marrakech between 1915 and 1925.⁠ Taking one step further, from 1922 the Service des Monuments enlarged the scope of its inventory considering the totality of a quarter as an historical monument to not be touched in lines and aspects.”⁠ This impulse to document, chart, and protect extended beyond urban centers to reach the Presaharian valleys of the Atlas Mountain range and rural earthen architecture. The monumental citadel, the Kasbah, and the fortified village, the Qsar, became a historical topos, along the pacified” roads of the Moroccan south that the colonial administration intended to transform into a tourist itinerary. The reproduction of lithographs and paintings by travelling artists such as Jacques Majorelle or ethnographers such as Robert Montagne, in the first decades of the century, portrayed this type of vernacular architecture specific to Berber communities as a locus of Moroccan authenticity.”⁠ In fact, the question of authenticity was at the heart of official discourse: Moroccan tradition was not yet corrupted” by Western culture, and the archaism” of Moroccans was to be guided by the French civilising mission.⁠ This false rhetoric of cooperation, progress, and mutual accommodation was the social technology used to find urban forms that would preserve hierarchies along social and racial lines.⁠

Jacques Majorelle, Anemiter, Vallée de l’Ounila Grand Atlas Crépuscule, from Jacques Majorelle, Les Kasbhas de l’Atlas (Paris: Jules Meynial, 1930): Planche 13.

Right at the onset of the French Protectorate, urban planning, like heritage discourse, was instrumental in establishing and cementing colonial rule throughout Morocco. One of the last territorial expansions of France also saw the establishment of the first dedicated Service d’Architecture et d’Urbanisme. French architect and urban planner Henri Prost was appointed to draw up the plans and define the technical and legal tools to control the morphological growth of Moroccan cities in an integrated manner.⁠ Prost’s take on urbanism was that of operationalizing difference.”⁠ Through a complex juxtaposition of modern planning with traditional Moroccan cities, planning was understood as a social field within which a controlled diversity could be constructed and regulated.⁠ The law on urban planning was passed in 1914 to establish development and expansion norms for all Moroccan cities, including obligatory hygiene, safety, traffic, and aesthetic considerations.⁠ The autonomy of native quarters—the medinas forming the historical urban centers—was advocated with respect to areas reserved for European settlements. Expropriation laws were leveraged not only for resource transfer to the colonial entity but also as a mechanism for urban reorganization along social and racial lines, or what Janet Abu-Loghod calls, in the case of Rabat, an apartheid city.⁠

Technical section of the city plans of Morocco, Master Plan of the ville nouvelle (in red) compared to the medina (in white), Fez, 1926. From Gallica bibliothèque numérique de la BnF.

On paper, historical urban fabrics in Morocco were designated as heritage for their artistic’ value. Yet, the practices and norms that allowed for their maintenance and continuity were disregarded and dismissed. In fact, the initial plans for the development of cities like Rabat or Casablanca did not account for either extension areas of existing quarters nor for new Moroccan quarters since such areas would not have been as profitable as areas dedicated to other commercial, industrial, or privately owned residential uses.⁠ It is as though the native urban dwellers were kept in an indefinite stasis, like their buildings and traditions, while the European settlers lived at the pace of modernity.⁠ However, this dual spatial organization dismissed a third and most numerous population: the rural dispossessed migrating to the city.

In fact, the concentration of administrative, industrial, and military activities within a strip spanning 140 km from Casablanca to Kénitra (then called Port-Lyautey), combined with the land reorganization of the countryside into large agricultural monopolies and sites of material extraction, led to the dispossession of rural populations and their forced exodus to the new economic centers.⁠

Albert Laprade, survey drawings and sketches in Rabat and Salé. From Albert Laprade, Architectures de la Méditerranée à travers les croquis d’Albert Laprade, (Paris : Berger-Levrault, 1930) : 103-105.

Albert Laprade, survey drawings and sketches in Rabat and Salé. From Albert Laprade, Architectures de la Méditerranée à travers les croquis d’Albert Laprade, (Paris : Berger-Levrault, 1930) : 103-105.

Albert Laprade, survey drawings and sketches in Rabat and Salé. From Albert Laprade, Architectures de la Méditerranée à travers les croquis d’Albert Laprade, (Paris : Berger-Levrault, 1930) : 103-105.

In Casablanca, for instance, to face this large population influx, a new Moroccan quarter was planned three kilometres away from the medina on lands conceded by the Administration of the Habous. Beaux-Art trained architect Albert Laprade was called upon in the early 1920s to design this New Medina, functioning as an autonomous city with its housing, schools, mosques, hammams, and souks (markets). Laprade wished to integrate modern equipment such as sewage, electricity, and roadways within a traditional setting so dear” to the Moroccans.⁠ His careful surveys of forms and uses of traditional dwellings across the country’s urban centers served as references to produce house types of various sizes, all organized around a patio. Permutations of these domestic types, together with landscaping and architectural detailing crafted on-site with local artisans, made for a wide variety of streetscapes:

Wherever we could, we planted trees, mainly fig trees or eucalyptus trees. Above the streets, we planted trellises in places. In the recesses, we threw trellises in places. In the recesses, we put masonry benches, and at the crossroads, drinking fountains to complete the desired atmosphere. Everything was built very cheaply with local labour and materials. In certain carefully chosen places, maalems, master masons, carved keystones and capitals for us, painted bouquets of flowers on the shutters, adding a touch of artistry here and there in this deliberately modest, extremely simple, supremely cubist’ ensemble, one might say, but made with cubes where one could feel the hand of man, of life.⁠

Albert Laprade, Typical residential street in the Habous quarter, Casablanca: a. room; b. toilet; c. patio; d. kitchen/cooking area. Redrawn by the author after a sketch from Le Centre d’Archive d’architecture contemporaine, Fond Laprade: Arch. Aa/Capa/Aa XXe 317AA-10/1.

This culturalist design deployed a similar strategy at the urban scale, connecting large urban forms such as craftsmen workshops, religious complexes, and administrative services through gateways and porticoes to generate urban sequences that dissolve the ordering grid.⁠ Picturesque devices produced orientalist visions made for Moroccans but without them. Life is absent from Laprade’s sketches, which feature urban fragments conjuring up the phenomenology of an outdated and idealized past.⁠

We could have adopted the so-called economical solutions, or more accurately, lazy solutions, building a hundred or two hundred homes based on the same plan. We could not accept this approach. All the houses were designed one by one with love. We strove to maximise the impression of casualness so dear to Muslims.⁠

Albert Laprade, Plan for the new Habous neighbourhood in Casablanca. From Albert Laprade Nouvelle ville indigène à Casablanca (Maroc)”, L’Architecte(décembre 1924): 103-104.

Aerial View of the Habous quarter, ca. 1917. From Le Centre d’archives d’architecture contemporaine, Fond Prost: Arch. Aa/Capa/Aa XXe 317AA-10/1.

The Habous quarter stood as a model for town planning in the Protectorate’s early decades, especially in state-sponsored company towns and quarters. Its phenomenological value, however, proved inadequate to respond to the pressing housing needs.⁠ Even before its completion, the resulting density was insufficient, with only 5,000 inhabitants being housed from the hundred thousand homeless migrants. Moreover, its high construction cost meant that the rents could only be afforded by more affluent merchant families.⁠

HABITAT AND THE DWELLING MATRIX

Thirty years of French colonial rule in Morocco marked, on the one hand, by laissez-faire land speculation and, on the other, by housing projects reserved only for Europeans, led to a severe housing shortage for the proletarianized Moroccans. In the absence of affordable rents, existing quarters for Moroccans reached alarming levels of density.⁠ Most new urban migrants hastily settled into makeshift quarters, the infamous bidonvilles, at the fringes of the planned city. Growing discontent over the housing conditions and political action by the Comité d’Action Marocaine in the 1930s culminated in the Proclamation of Independence in 1944, signed by Moroccan nationalists.⁠

The French colonial response came once again, using urban planning as a pacifying force. Indeed, in the post-war era (1946–1956), the problem of Housing for the greatest number” was the primary concern for the Service de l’Urbanisme (SU) and its newly appointed director and architect Michel Écochard.⁠

Michel Écochard, Horizontal eight-by-eight-meter grid for new urban settlements: a. room; b. patio; c. kitchen; d. toilet.

Redrawn by the author from Sascha Roesler et al., Habitat Marocain Documents: Dynamics between Formal and Informal Housing (Park Books, 2015): 136.

Aerial View of the Écochard grid at the Carrières Centrales in Casablanca under construction, 1953.

From Michel Ecochard, Habitat Musulman Au Maroc,” L’Architecture d’Aujourd’hui, no. 48 (1953): 98.

The greatest numbers at the lowest costs were the key incentives of the initial slum clearance projects at Les Carrières Centrales in Casablanca and Yacoub El Mansour in Rabat. Applying the functionalist principles of Existenzminimum at the domestic scale, each family was to be allotted an 8 x 8 m plot with two rooms built around a courtyard on a single floor, with the possibility of a future extension built by the dwellers according to their needs and means.⁠ The repetitive juxtaposition of this living cell in a honeycomb enabled the maximum use of wall space with the minimum road and public service area: a single dead-end alley was to connect four dwellings. The multiplication of these clusters into a grid and the statistical distribution of dedicated zones for hygiene, rest, education, and work according to the Athens Charter, could be replicated ad infinitum.⁠ Écochard, an admirer of Le Corbusier’s Plan Obus, saw the housing question as one to be solved through a harmonious distribution of demographic and industrial elements throughout the territory. Without any considerations for society, culture, geography, climate, or construction materials, he saw beings in a territory as the universal common denominator for urban planning.⁠

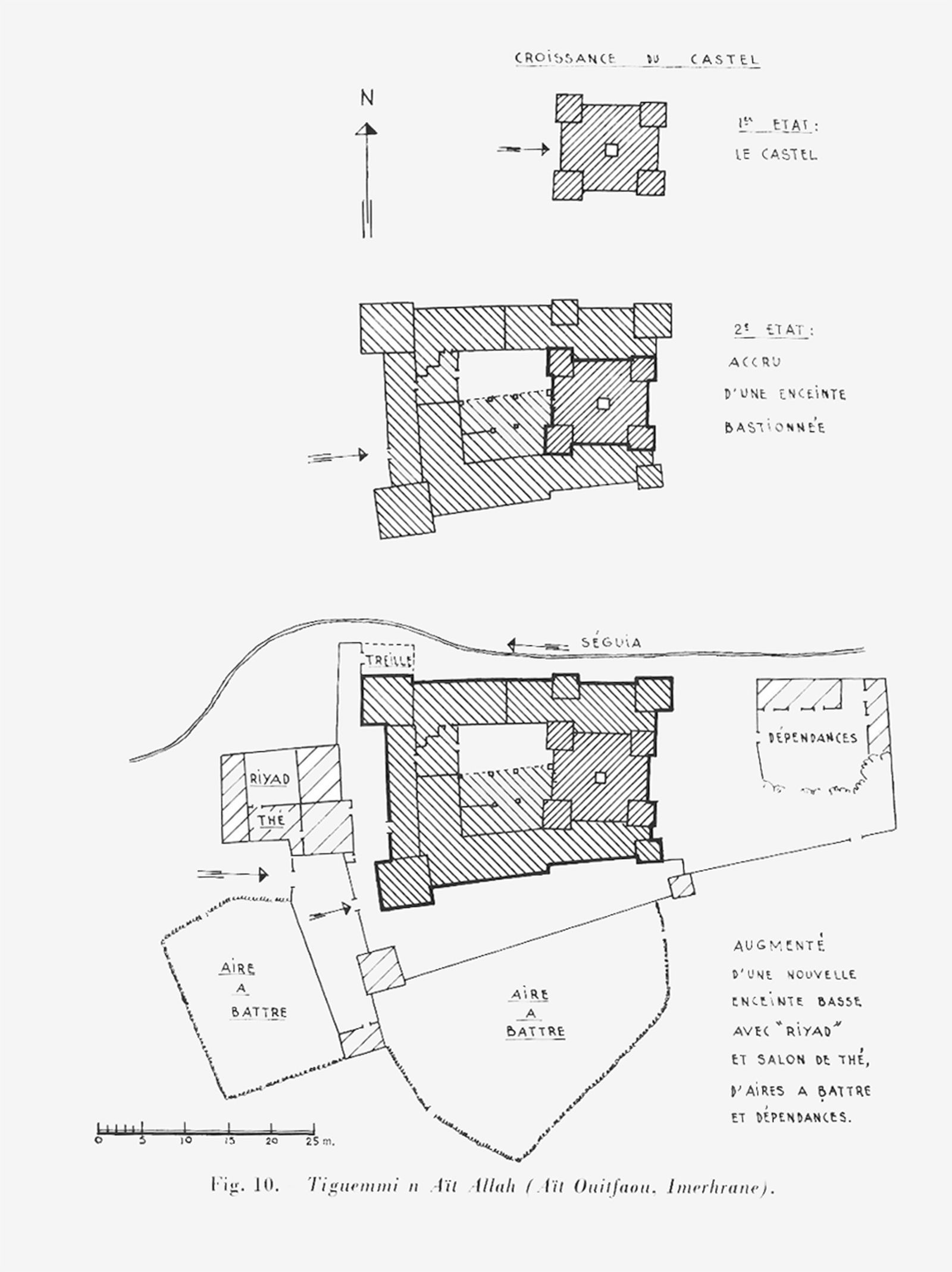
D. Jacques-Meunié, Plans of Fortified Villages and Agglomerations in the oases. From Jacques Meunier, Habitat et Architecture du Dadès (Paris: 1962): 26-30.

D. Jacques-Meunié, Plans of Fortified Villages and Agglomerations in the oases. From Jacques Meunier, Habitat et Architecture du Dadès (Paris: 1962): 36-37.

At the domestic scale, type was to be immune from any regional particularism and as such, the courtyard house was seen as a concession” to Moroccans’ need for privacy—a transitional step towards modernity.⁠

Although steeped in modern technology, couldn’t we draw from rural life for insights and a spirit capable of helping us find solutions that remain on a human scale? (…)

Wouldn’t the evolutionary patterns applied in our large North African cities merit an architectural study which, without seeking a picturesque effect, would constitute a contribution?⁠

Such is the question raised in L’Architecture d’Aujourd’hui, issue 60 (1955), in which the Écochard grid is also featured and described at length. The quest for human scale in habitat, based on the study of existing rural dwelling patterns,” reflects another approach in the design of housing for the greatest number. Architects and planners trying to break the distance between abstract high culture and the realm of everyday life brought their studio into the field in a manner akin to ethnographers and anthropologists whose expeditions expanded the notion of habitat to include not only architectural form but also environmental, social, and ethical dimensions.⁠ The works of Henri Terrasse, Robert Montagne, or Djinn Jacques-Meunié on the Qsur and Kasbahs of the Atlas Mountains must have been known to this generation of architect-ethnographers.

At the SU, the interest in rural dwelling patterns concurred with a need for planning in rural areas to increase agricultural output. Farming estates required waged laborers concentrated in their vicinity and, for this purpose, new centralities were to be formed on existing commercial nodes.⁠ From 1947, mobile studios—les ateliers ambulants—composed of architects and engineers, were deployed throughout Rabat’s hinterland to simultaneously survey existing house groupings and communal facilities and to determine the location of new areas and equipment according to the territory’s natural features and the principles of the Athens charter.⁠ As Michele Tenzon highlights in his study, these operations in the field only served to legitimize the Écochard grid in the countryside as the hybrid product of rural and urban encounters in the suburban periphery.⁠

Eli Mauret, Photographs and orthographic drawings of rural habitat in the Gharb fertile plain. From Eli Mauret, Problèmes de l’équipement rural dans l’aménagement du territoire,” L’Architecture d’Aujourd’hui, no 60 (1955): 42-45.

Service de l’Urbanisme, Photographs of the atelier ambulant at Petit-Jean, 1954, from the Photothèque de l’École Nationale d’Architecture (ENA) de Rabat.

Left: Service de l’Urbanisme, Photographs of the atelier ambulant at Petit-Jean, 1954. From the Photothèque de l’École Nationale d’Architecture (ENA) de Rabat.

Right: Eli Mauret, Elements of composition of a rural center and sketches for proposed housing extensions. From Eli Mauret, Mise en valeur et Équipement rural de la Province de Rabat,” Bulletin Economique et Social du Maroc, no 69, (1956): 15–69.

Within research groups, GAMMA, the Groupe d’Architectes Modernes Marocains, formed in 1949 and affiliated with ATBAT-Afrique (Atelier des Bâtisseurs), positioned Morocco as an exemplary case study to develop alternative solutions toward l’habitat pour le plus grand nombre (habitat for the greatest number).⁠ Their contribution to CIAM IX at Aix-en-Provence in 1953, in contrast to the Écochard solution, represented a more humanist approach that viewed habitat as a culturally embedded practice.⁠

In fact, the GAMMA grid emphasized the morphological properties of space as decisive for social practices, treating the built environment as part of a broader material culture.⁠ In this framework, spatial practices were culturally specific, encompassing gender relations, domestic hierarchies, and the gradation between public and private realms. For example, with the juxtaposition of images from Atlas mountain villages with Casablanca’s bidonvilles, GAMMA suggested that certain dwelling practices could reappear in new environments, provided the typomorphological conditions were adequate.⁠ For them, the transposition of rural types such as the the nouala in an urban context, or the improvised barraka, are instances of hybridization: products of negotiation between traditional forms and industrial modernity.⁠

Georges Candilis and Shadrach Woods, Panel showing a photograph of bidonville at the Carrières Centrales in Casablanca, 1953.

Georges Candilis and Shadrach Woods, Panel showing a photograph of bidonville at the Carrières Centrales in Casablanca, 1953.

Georges Candilis and Shadrach Woods, Panel showing a photograph of the modernized noualas”transposed into a regular grid of roadways at Fedala El-Alia (near Casablanca), 1953.

From GAMMA Grid, CIAM IX, Aix-en-Provence, 1953 found in Tom Avermaete, Another Modern: The Post-War Architecture and Urbanism of Candilis-Josic-Woods, with Joan Ockman et al. (NAi Publishers, 2005): 96, 147.

Georges Candilis and Shadrach Woods, Panel showing a juxtaposition of dwelling typologies in the medina of Fez and in new urban development (Écochard Grid), 1953.

Georges Candilis and Shadrach Woods, Panel showing a juxtaposition of dwelling typologies in the medina of Fez and in new urban development (Écochard Grid), 1953.

Georges Candilis and Shadrach Woods, Panel showing a photograph of collective practices in the bidonville at the Carrières Centrales in Casablanca, 1953.

From GAMMA Grid, CIAM IX, Aix-en-Provence, 1953 found in Tom Avermaete, Another Modern: The Post-War Architecture and Urbanism of Candilis-Josic-Woods, with Joan Ockman et al. (NAi Publishers, 2005): 96, 147.

For GAMMA, habitat extended beyond the family unit to encompass the street and neighborhood, thereby challenging Écochard’s limited focus on the nuclear household and advancing a conception of dwelling as a collectively-held culture. In their view, spatial practice was not a fixed form but an infinite sequence of building, rebuilding, and transforming, where the built environment constituted a shared body of knowledge between builders, dwellers, and architects.⁠ Therefore, new dwelling typologies, if designed with cultural dispositions in mind, could in turn reshape practices over time, mediating between the fabric of the traditional medina and modern collective housing.⁠ More specifically, ATBAT-Afrique considered the grid as the general ordering figure: a flexible matrix capable of accommodating diversity and transformation, while the type provided a more precise analytical tool—an abstract class that could host variations and particularities.⁠ Rather than imposing a singular model, the coexistence of different housing types within the matrix allowed multiple dwelling practices and material cultures to find an expression.

Georges Candilis, Shadrach Woods and Victor Bodiansky, Habitat for the Greatest Number: A typical example—Housing in Morocco. From L’habitat pour le plus grand nombre,” supplement of L’Architecture d’Aujourd’hui, 1953.

The grid proposed by Écochard was deemed spatially and financially uneconomical to solve entirely the question of housing since its horizontal scheme required large strips of land to be deployed. ATBAT-Afrique, commissioned by the SU, explored the grid’s third dimension to design a vertical Moroccan habitat.⁠ They used the qsar as a reference for its ability to merge a high degree of domestic intimacy with a strong sense of collectivity.⁠ Although considered rural due to its proximity to the riverbeds of large arid valleys, this vernacular structure functions as an autonomous and self-contained urban unit, characterized by its very dense and multistory fabric, which allows for ground and roof circulation between multi-generational households.

ATBAT-Afrique, Habitat collectif musulman type Nid d’Abeille R + 4, typical floor plans of the Beehive building type: a. living; b. bedroom; c. patio; d. kitchen; e. toilet.

ATBAT-Afrique, Habitat collectif musulman type Nid d’Abeille R + 4, typical floor plans of the Beehive building type: a. living; b. bedroom; c. patio; d. kitchen; e. toilet.

ATBAT-Afrique, Habitat collectif musulman type Semiramis R + 4,  typical floor plans of the Semiramis building type: a. living; b. bedroom; c. patio; d. kitchen; e. toilet.

Redrawn by the author from the original plans published in L’Architecture d’Aujourd’hui, no 55 (1955): 38.

The resulting scheme, built in 1951–52 at the Carrières Centrales in Casablanca next to the Écochard grid, included two bar building types, alternating solids and voids, closed rooms and open courts, onto the façade to create a vertical village.”⁠ The Nid d’Abeilles (Beehive) type translated into a vertical lattice of patios, obtained by stacking the housing units and shifting one bay in plan, whereas the Semiramis type alternated clusters of rooms (four) with clusters of patios (two), switching orientation at each floor. Clear boundaries between private and public spaces marked by opaque walls ensured the privacy of each living cell, while public encounters occurred in the open galleries connecting the residents’ doors and in the sheltered recessed spaces on the ground floor with benches for gathering and selling.

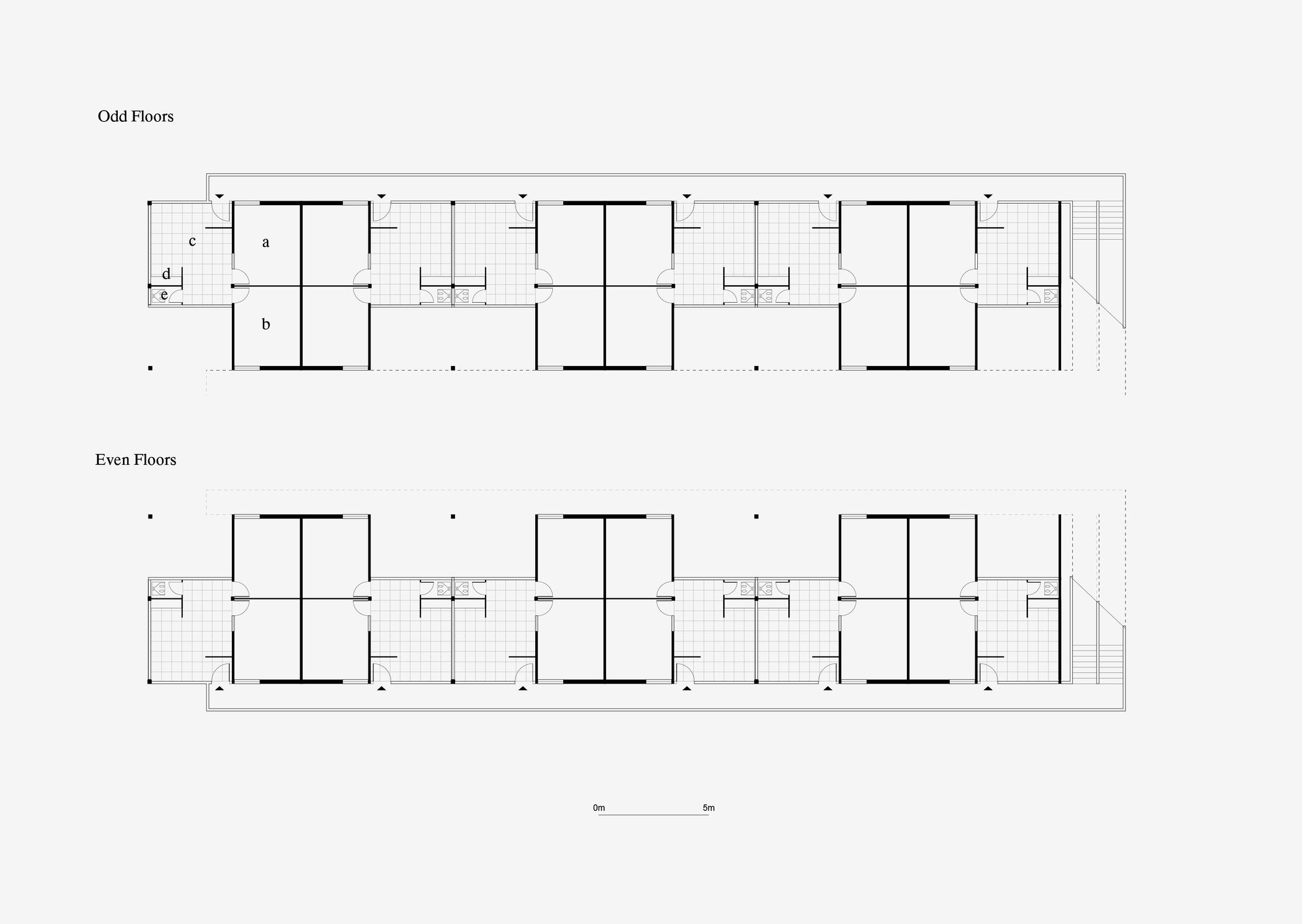
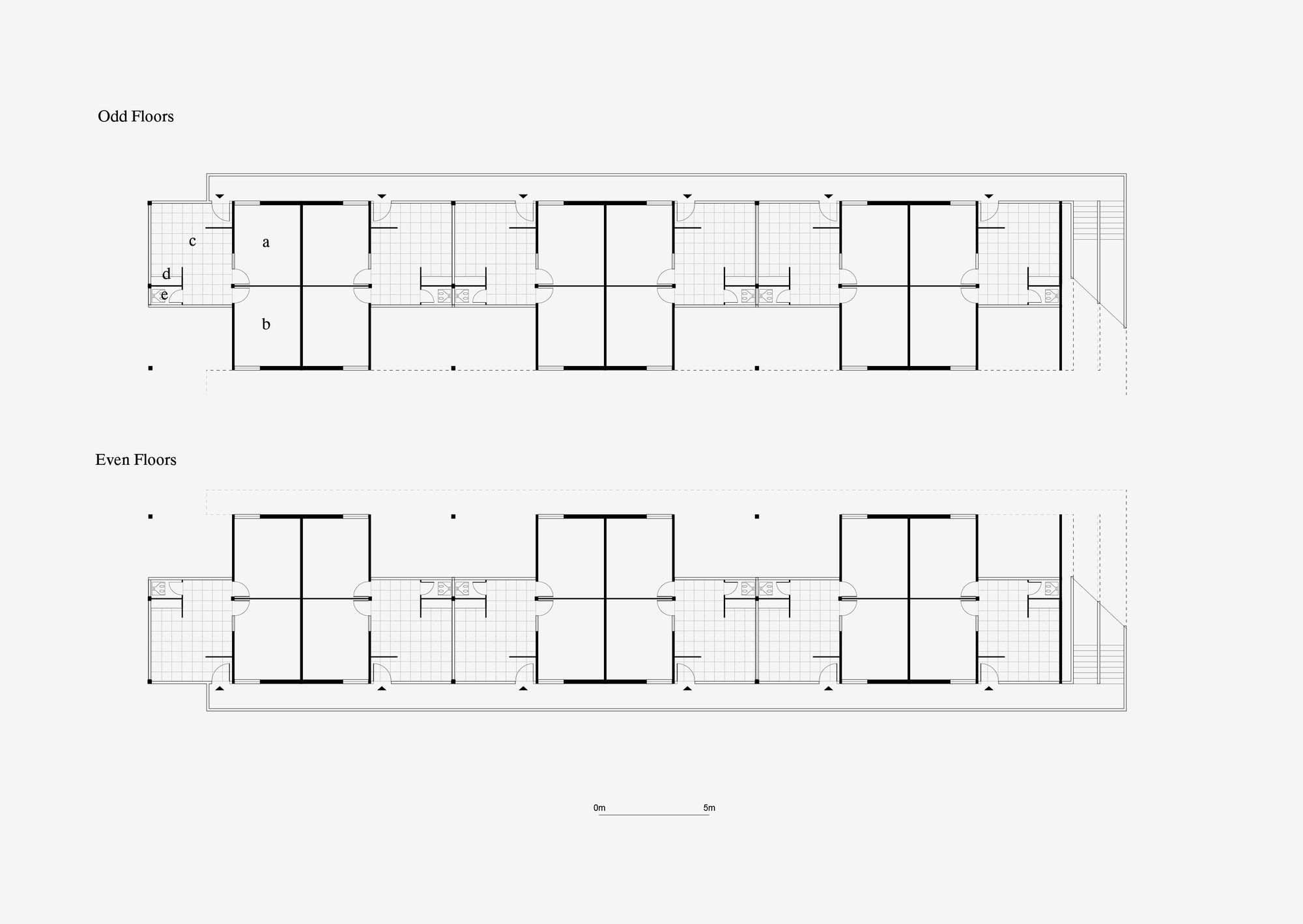
Jean Hentsch and André Studer, Habitat Marocain, Typical Floor Plan of Type P Building. Redrawn by the author from Sascha Roesler et al., Habitat Marocain Documents: Dynamics between Formal and Informal Housing (Park Books, 2015): 175.

Jean Hentsch and André Studer, Habitat Marocain, Typical Floor Plan of Type P Building. Redrawn by the author from Sascha Roesler et al., Habitat Marocain Documents: Dynamics between Formal and Informal Housing (Park Books, 2015): 175.

Jean Hentsch and André Studer, Habitat Marocain, Hypothetical Appropriation Pattern of a typical living cell: a. living; b. bedroom; c. patio; d. kitchen; e. toilet; f. bathroom; g. stair leading up to the terrace.

Redrawn by the author from Sascha Roesler et al., Habitat Marocain Documents: Dynamics between Formal and Informal Housing (Park Books, 2015): 144–145.

A project closer to the open-ended” approach advocated by ATBAT-Afrique, able to support the changing and evolutionary character of the dwelling, was realized shortly after in 1953 by Swiss architects André Studer and Jean Hentsch at Sidi Othmane, another suburb of Casablanca. The scheme, called Habitat Marocain, also relied on living units with staggered double-height patios on the façades (one bay shifting in plan). The major difference with the previous schemes is that the load-bearing structure on the façade (posts and beams) is consciously detached from the walls of the living cells. Thereby, the three-dimensional grid of the design becomes a dominating framework within which the wishes and needs for life can express themselves.”⁠ In fact, residents were able to make significant changes to their individual living cells, such as covering up the patio, adding up a floor on top, breaking walls, adding stairs, and adding windows, without altering the reading of the spaceframe generating the building.

During the design phase of Habitat Marocain, Studer’s repeated trips to the remote villages of the Atlas Mountains, where most urban migrants came from, reveal his search for a cultural interpretation” to the project of modernization.⁠ The broadening of the empirical approach to include not only the design of the project but also its after-life in the appropriation by its inhabitants, constitutes the quality of the proposal. If Candilis and Woods regarded the decay and disposal of a building as part of architecture’s life cycle and the city’s transformation, perhaps Suter’s permanent dwelling matrix was closer to the life cycle of minor architecture.⁠

Left: André and Teres Studer, Photograph of a small Kasbah near Ouarzazate, December May 1954.

Right: André and Teres Studer, Photograph of Habitat Marocain under construction, December 1955.

From Sascha Roesler et al., Habitat Marocain Documents: Dynamics between Formal and Informal Housing (Park Books, 2015): 62, 86.

Last but not least, both vertical housing experiments drew on the typological value of the courtyard house not as a nostalgic or stylistic motif but as a deep structure of dwelling culture adopted through collective consciousness.⁠ In these vertical villages, however, the collective is absent. The mere rhetorical suggestion of collectivity, with the alleys in the air” or the rudimentary souk spaces, appears as an orientalist vision rather than the theater of social structures and kinship.⁠ All intermediate scales of governance and organization, which lie between the household and the state commissioning the project, are removed.

LOCAL MATTERS & ARCHITECTURE WITHOUT PLAN

Mourad Ben Embarak, the first Moroccan architect to join the Service de l’Urbanisme after independence, articulated the problem of defining a modern Moroccan architecture.”⁠ While condemning both pastiche and the eclectic citation of historical forms, he questioned how traditional” architecture could be referenced within modern construction. His formulation of the question reveals a fundamental separation deeply rooted in colonial and orientalist logic: traditional architecture was still seen as external to modernity, its value to contemporary practice reduced to a mere citation or image. This tension was not unique to architects. Moroccan youth more broadly expressed a desire to live in spaces and environments that embodied progress, simplicity, and logic—a universal language of architecture that nonetheless retained an original Moroccan character.⁠ Intellectuals and artists engaged in cultural and political circles echoed this position, calling for the autonomy of cultural expression beyond colonial or bourgeois ideology. As one such statement insisted, much of our culture did not reflect the ideology of these exploitative classes and had been expressed for centuries, if not millennia, in specific, autonomous, oral, and collective forms that were integrated into everyday life. This was true then and remains true today of our vernacular rural and urban literature, music, and popular art.”⁠ This final part of the essay traces how architects experimented with concrete strategies in the search for the meaning of vernacular practices applied to the project of Moroccan Habitat.

Until the mid-1960s, the Moroccan state systematically intervened in housing, largely continuing the French Protectorate’s framework. Initiatives such as the Derb Jdid housing scheme in Casablanca by Moroccan architect Elie Azagury, adapting the Écochard grid (vertically and horizontally) to residents’ income levels, or the reconstruction of Agadir, post-earthquake, underscored architecture’s role in nation building and self-determination.⁠

Housing shortages in cities also inevitably called for planning in the country beyond the productive lands of the Maroc utile (“useful Morocco”).⁠ Town planning extended to infrastructure projects, and norms for new rural centers were drafted to strengthen the rural armature” throughout the country.⁠ In the following decade (1965–1975), however, housing budgets fell sharply—from 54 to 8.5 million dirhams—due to economic and political turmoil that required a drastic reduction in direct state action.⁠ The assisted sanitary grid (Trame Sanitaire Assisté) consisting of roadways, sewage, and electricity connections exemplifies this shift: a basic infrastructure for beneficiaries of the plots to carry out their own housing projects.⁠

Plan of a compounded dwelling inside a qsar: a. vestibule; b. common area; c. kitchen; d. room; e. alcove stables; f. tool storage; g. hayloft ; h. storage; i. mesria (living); j. food storage k. terrace. Redrawn by the author after Jean Hensens, Habitat rural au Maroc Enquête sur l’habitat rural traditionnel (Rabat: Edition du CERF, 1970): 52.

The scarcity of resources forced the Moroccan states to seek funding through international aid agencies such as IBRD, WFP, UNDP, or UNICEF. Diagnosis, reporting, and research on housing became essential leverage for funding. Toward this aim, the Centre d’Expérimentation, de Recherche et de Formation (CERF) was established in the urban planning and housing department under the Interior Ministry.⁠ This think tank, composed mainly of foreign experts (architects, engineers, and social scientists), connected Moroccan experimentation to an international discourse on self-construction, vernacular studies, and urban planning. Through critical bibliographies and magazine subscriptions, the research group was familiar with the works and ideas of figures such as Hassan Fathy, Bernard Rudofsky, John Turner, and Doxiadis.⁠

Building with/renovating the existing

The never-ending housing question, fuelled by decades of rural exodus towards the industrialized Atlantic Coast, had previously eclipsed an important corollary: the erosion of social and material structures in villages marked by departures and abandonment, especially in the mountainous and desert regions of the country. The realization that rural architecture was a tradition in peril” at a moment of post-colonial self-determination led to efforts of documentation and preservation.⁠ The most significant project was a national survey on vernacular domestic architecture (“habitat rural traditionnel”) conducted by Belgian architect Jean Hensens working within the CERF together with Moroccan students of architecture, geography, and sociology.⁠ The research was compiled in 1970 into a publication titled Habitat rural au Maroc: Enquête sur l’habitat rural traditionnel. Beyond systematic orthographic drawings to scale (plans, sections, elevations) and numerical data on construction costs and materials, this national inquiry attempted to systematize the evolution of housing principles and space use within the family unit and the collectivity at large. The stated purpose of the study beyond documentation and analysis proposed a prospective model,” i.e. a set of norms and considerations according to which existing rural habitat could be enriched and renovated using modern means echoing inhabitants’ aspirations.⁠ This project embodies multiple layers of contradiction: it is a national initiative led by a foreign expert; a central operation advocating for regional autonomy; a modernization project holding the naïve” belief that progress is gradual and selective.⁠ Yet, it offers a lens through which to understand the ethos of the mass housing project that took place in the 1965–1975 decade and the position of architects involved in the field vis-à-vis the state position.

Jean Hensens, Hypothesis for the evolution of the concept of dwelling, 1970.

Jean Hensens, Hypothesis for the evolution of the concept of dwelling, 1970.

Jean Hensens, Use of domestic space and relationship family/village.

From CERF, Habitat Rural au Maroc (Rabat: Edition du CERF, 1970): 111, 120.

D. Papini, Photograph most likely showing J. Hensens (architect) and A. Hammoudi (sociologist) conversing with inhabitants in Azzadene, a village in the High Atlas, 1975.

D. Papini, Photograph most likely showing J. Hensens (architect) and A. Hammoudi (sociologist) conversing with inhabitants in Azzadene, a village in the High Atlas, 1975.

Spatial development of the four main lineages of Azzadene.

From Jean Hensens, Azzadene pré-étude sur l’habitat rural dans le Haut-Atlas occidental, Ministère de l’urbanisme, de l’habitat et du tourisme (Rabat, 1975): 16, 60.

Building with local materials

The interest in rural habitat and its modes of construction opened a field of research within the CERF on how mass housing projects could experiment with local materials by industrializing traditional solutions.”⁠ This line of inquiry was supported by a reciprocal argument: the enduring modernity of volumes, plans, and traditional materials” and the most modern methodology in the service of the most traditional habitat.”⁠ This orientation fostered technological experiments aimed at improving local materials such as earth and reed, cast as free resources.⁠

CERF, Photographs of building an experiment at the Yacoub El Mansour neighbourhood in Rabat, 1973.

From David Georges Emmerich, Soft architecture: essais sur l’autoconstruction (Paris : Institut de l’environnement, 1974), 57–75; and Gérard Bauer and Jean Dethier, La Terre et Le Roseau Ou La Réhabilitation et l’amélioration de Techniques Traditionnelles de Construction Au Maroc,” L’Architecture d’Aujourd’hui, no. 160 (1972): 104–11.

A line of research explored the potential to deploy lightweight, reproducible solutions using reeds, plaster, and prefabricated elements as a slum-upgrade scheme.⁠ The experimentation culminated in a building seminar involving Moroccan, French and American students and local labourers in Rabat’s Yacoub El Mansour neighborhood where slum clearance was underway.⁠ The experiment consisted of 25 m2 single octagonal room units which were assembled with intermediate water closets to enclose a circular central court. The units were seen as multiple rooms for a large household or single-family units choosing to live together. While the seminar was championed as a pilot construction site toward a larger construction movement in the neighborhood using reeds and plaster, community involvement was minimal. Knowledge transmission through various awareness measures, technical assistance, and affordable material supply were mentioned in principle but not acted upon.⁠ The emphasis fell less on meaningful co-production than on showcasing reproducible forms using local materials and methods, underlining a paternalistic approach that oscillated between valorizing tradition and imposing functionalist modernity.⁠

Jean Hensens, Plan of aggregation of BTS-67 housing units, 1967:

a. living; b. bedroom; c. patio; d. kitchen; e. toilet; f. stables; I. public square; II. two rooms for collective amenities.

Redrawn by the author from Jean Hensens, Habitat semi-rural en béton de terre stabilisé [Rapport de recherche], (Marrakech: Division de l’habitat, Inspection de l’urbanisme 1967): 7.

Another line of research attempted to serialize rammed earth construction in service of permanent mass housing solutions. For instance, a project in Ouarzazate in 1967 delivered 200 housing units made of cast-in-place stabilized-earth concrete (béton de terre stabilisé) giving its name to the operation: BTS-67.⁠ Alain Masson (engineer) and Jean Hensens (architect), leading the project, wished to speed up the construction process while reducing the amount of skilled labour required: metal formwork replaced wooden benches, pneumatic tampers accelerated compaction, and entire units were cast monolithically with walls and vaulted ceilings in a single operation.⁠ At the scale of the housing unit, BTS-67 extended to a 10 m by 10 m perimeter incorporating spatial devices such as a chicane entrance for more privacy, a courtyard with a garden, and even a dedicated space for cattle. Hensens’s detailed drawings of prefabricated elements, such as gargoyles, water basins, and alcoves for furniture made of reeds, reveal a careful observation of dwelling practices, from everyday objects to modes of circulation within the home.⁠ The vaulted roof, however, proved alien to Moroccan dwelling patterns, as it prevented vertical extension, and was ultimately abandoned after the first few prototypes were built replaced by a flat reinforced-concrete roof.⁠

Metal formwork for single house casting using stabilized earth concrete for BTS-67, Ouarzazte, 1967.

From Gérard Bauer and Jean Dethier, La Terre et Le Roseau Ou La Réhabilitation et l’amélioration de Techniques Traditionnelles de Construction Au Maroc,” L’Architecture d’Aujourd’hui, no. 160 (1972): 104–11.

Metal formwork for single house casting using stabilized earth concrete for BTS-67, Ouarzazte, 1967.

From Gérard Bauer and Jean Dethier, La Terre et Le Roseau Ou La Réhabilitation et l’amélioration de Techniques Traditionnelles de Construction Au Maroc,” L’Architecture d’Aujourd’hui, no. 160 (1972): 104–11.

Aerial view of the BTS-67 operation, ca. 1969. From Fond Jean Hensens (FJH).

The tension between representation and lived reality was also visible in the way the project was documented: photographs of the construction site highlighted the machinery, formwork, and technical reproducibility, while effacing the presence of workers, as if modernist form-making itself was the true subject of the experiment.⁠ Moreover, the scheme itself embodied a deeper ambiguity. Typologically, it translated rural architectural elements into an urban housing complex, but the absence of electricity and glass windows left it suspended between the temporary and the permanent, the rural and the urban. As Rouizem observes, BTS thus embodied the contradictions of such projects: attentive to traditional ways of life, yet conceived through a modernist lens that privileged technical reproducibility and economic assessment over ecological or social sustainability.⁠

Building with the people

Understanding the limitations of a purely technical or material approach, members of the CERF reflected on the possibility of people building their own durable standardized dwellings. Aligned with the international discourse on “aided self-help housing” promoted by foreign aid agencies,⁠ they sought to empower unskilled communities to shape their own built environment provided with the adequate tools and guided with the right expertise.⁠

Photographs of the renovation of rural habitat in the Dra Valley funded by the World Food Program. From Jean Hensens, Éléments Relatifs à l’opération de rénovation de l’habitat traditionnel de la Vallée du Drâa (Ministère de l’intérieur, direction de l’urbanisme et de l’habitat, 1969): 3, 19, 25.

In Morocco, the rhetoric of self-help found resonance in the colonial ideal of the peuple bâtisseur (the building people), most clearly expressed by the late Protectorate in the Castors (beaver) operations.⁠ First initiated in France in the late 1940s, the system was transposed to Morocco in the 1950s as part of indigenous” housing programs.⁠ Moroccan Castors were called upon to build their own homes, with plots and plans supplied by the authorities, thereby lowering costs through the mobilization of unskilled labor.⁠ After independence, this model resurfaced in a new guise through the Programme d’Habitat Rural (1968–1972), supported by the World Food Program. Rather than receiving subsidies, rural communities were asked to contribute their own labor in exchange for food, in a context of declining state involvement under economic and political constraints.⁠ Influenced by John F. C. Turner’s sites and services” experiments in Peru, which Turner himself presented to the CERF in Rabat, Moroccan planners promoted progressive improvement of built stock through incremental self-construction rather than clearance, followed by the eviction of their residents.⁠ Two types of food-for-work” actions were conducted: first, the renovation of houses within the qsur reframed as both touristic and cultural assets to be continuously inhabited and maintained; second, the construction of new homes through self-help with only minimal technical and material assistance.⁠ The CERF promoted these programs as grounded in the people’s will and their building know-how, yet in practice, plans and schedules were imposed by experts, leaving little room for genuine participation.⁠ This contradiction highlights the ambiguity of self-help: celebrated as decentralizing, modernizing, even decolonizing, it remained entangled with dependency on foreign expertise, imported technologies, and the withdrawal of the state.⁠

Building without plan

Within the CERF, architects like Jean Dethier or Jean Hensens became increasingly critical of the shortcomings of planning policies, realizing their mission to modernize the countryside risked erasing all intermediaries between the nuclear family and the village.⁠ An unrealized design proposal in 1970 by Jean Hensens can be read as a counter-project to the State’s grappling with the complexity of local matters: the Habitat évolutif auto-construit normalize (Standardized Self-Built Evolving Habitat).

This scheme reflected the architect’s will to withdraw: a massing plan without plan.”⁠ For instance, instead of a fixed design, it offered a series of norms and prescriptions at multiple scales. Direction of growth was indicated, with zones for self-construction and equipment envisaged at the block, neighborhood, and city level. Within the housing unit, families were allowed to expand in plan or in section—a pursuit of the research on evolving habitat found conducted as part of the BTS-67 operation. The presence of the typical plan” appeared more as evidence of the architect’s awareness of local practices, a token of legitimacy rather than a blueprint.⁠

Jean Hensens, Habitat urbain évolutif auto-construit normalisé (standardized evolving self-built urban dwelling). A. Residential fabric. Optimal density: 60 lots/hectare with an optimum of 150 to 300 dwellings per housing block. B. Collective amenities per block: alleyways, courts, squares, fountains, gardens, children’s park, coffeeshop, convenient store, kindergarten, community center, hammam, prayer room, workshops. C. Neighborhood services: streets, parks, shows, post office, administration, health center, cafés, restaurants, market, commercial complex, warehouses, garages, parking, buses, taxis, mosque. Note by Jean Hensens: The north-south, east-west orientation is chosen out of convenience. In reality the morphology of the site and the local constraints will determine the various directions that allotments and built blocks will assume, adding to the variety of urban landscapes.”

Redrawn by the author from Pour un paysage urbain marocain. Propositions pour un tissu urbain dense de l’habitat populaire autoconstructible évolutif normalisé [research report], Royaume du Maroc, ministère de l’Intérieur, Direction de l’urbanisme et de l’habitat (DUH) (Édition du CERF: 1970).

At the core of these positions lay a concern with language. Hensens often described architecture and urbanism as part of a common vehicular language, intelligible and elaborated by all” or as Amos Rapoport writes in the same years: a framework of constraints and loose rules that allowed the interplay of constant and changeable” aspects of human life.⁠ The institutionalized vernacular building, as Rapoport argued, was reduced to linear progressions and historicist clichés.⁠ The industrialized vernacular, a heterogeneous art” and the truest expression of Moroccan architecture,” as Hensens explained, was impoverished and unsightly.⁠ From this ground, he believed, a genuine mutation could emerge, combining tradition with new techniques.

Jean Hensens, elevations of scalable semi-rural dwellings, 1966.

Jean Hensens, elevations of scalable semi-rural dwellings, 1966.

Jean Hensens, plans and elevation of scalable semi-rural dwelling. From Jean Hensens, Habitat semi-rural en béton de terre stabilisé [Research Report], (Marrakech: Division de l’habitat, Inspection de l’urbanisme 1967): 1-2.

Yet such a model, he insisted, could only function under decentralized management: a return to village autonomy, not through the revival of traditional assemblies—which risked cultural inertia—but through new local bodies capable of transmitting know-how and coordinating collective building.⁠ This amounted to what Hensens later described as a decentralist social utopia,” a counter-model to the universal industrial city of the nineteenth and twentieth centuries.⁠ The implications of such a social order extended to property structures. Colonialism had introduced divisibility and private appropriation into Moroccan landownership structure, undermining collective forms of property.⁠ For Hensens, however, collective frameworks that resisted fragmentation remained a critical condition for sustaining endogenous processes of space making. In this system the architect was not an expert or a technocrat, but a participant in the communal project, through an integrated technicity” that drew on collective principles while opening to modern needs.⁠ Even the existing built environment was not exempt: it too had to evolve with contemporary uses. As Hensens put it, the task was not nostalgic preservation but the study, deepening, and updating of communal principles within urban policy.⁠ The goal was not the maintaining or making of a static traditional” architecture, but what he called an architecture en devenir traditionnel”— becoming-traditional, shaped by collective life, external contributions, and creative activity.⁠

The end of the Programme d’Habitat Rural and the dissolution of the CERF in 1973 also coincided with a gradual decline of the state’s direct intervention in mass housing projects. The activity of the research group was entangled in colonial and post-colonial practices, as its staff composed mainly of foreigner experts acted at once as agents in the field for the Moroccan state and as bridges to foreign agencies.⁠ The extensive research material produced in the preceding decade attests, however, a genuine concern in recovering the tacit knowledge and values embedded in minor architecture towards an alternative political project.

TOWARDS A HISTORY OF MINOR ARCHITECTURE

This essay brought to the fore architectural studies undertaken by state agencies over the twentieth century (1912–1975) towards defining a Moroccan Habitat. At the onset, the planned separation between the existing built environment and the Modern project, legitimized by paternalistic preservation, turned any attempt at designing Moroccan housing into an act of recovery. This process, as was shown, involved operations of documentation, abstraction, and multiplication towards achieving a difficult whole. Each operation relied on specific frames of value and thought, namely on specific epistemes of architecture such as phenomenology, typology, or semiotics.⁠ Each operation inevitably incurred a loss in translation in the dialogue between minor architecture and the housing project. The architect’s desperate act at turning one into the other was to withdraw. Yet, this dialogue over the longue durée between mass housing projects and minor architecture in Morocco helped construct a historical space.” ⁠ As Manfredo Tafuri explains, this space does not establish causal links between these two architectures but rather expresses what their distance means by making the absence that seems to dwell on that void speak.”⁠ This historical space constitutes the values of minor architecture as heritage calling for its own means of appraisal and continuous maintenance.

Hypothetical typological plan (ground level) of a street in the qsar of Tamnougalte, 2025. Drawn by the author.

The images of Dwelling on Absence are found in the eponymous collection, as part of the Archives de l’imaginaire project.

AUTHOR

Reda Berrada is an architect and PhD candidate at the École Polytechnique Fédérale de Lausanne (LAPIS lab). Berrada’s research interests include the representation of domestic space, with a particular focus on heritage studies in relation to non-pedigree architecture.

Download PDF
ISSN   2813 – 8058TPOD, EPFL