This site uses cookies.  To know more read our privacy policy.
Sign up to receive updates.  
terms  
Sign up to receive updates.Sign up
Burning Farm
Goodfellas
The OSA Group and Research on Housing in the Soviet Union of the 1920s

Romain BarthIssue 28March 2026ReadCite

Unit Type F building prototype, developed by the Standardization Department at Stroykom RSFSR, 1929, elevation.

From Sovremennaya Arkhitektura (SA), no. 1 (1929): 14.

The Organization of Contemporary Architects (OSA) was a Soviet association of architects founded in 1925 and active until 1930, when its official magazine, Sovremennaya Arkhitektura (SA), was dissolved. In just a few years, the OSA established itself as one of the most important modern architectural movements of the twentieth century. Its defining feature was that it placed architecture, domestic space, and politics at the center of its concerns. Following the Bolshevik Revolution in October 1917, which brought a socialist regime to power, OSA considered that architecture could contribute to the definition and the organization of a new socialist way of life, which would no longer resemble the class-based way of life found in capitalist countries. As a result, the association promoted modern architecture, not so much as a formal or stylistic project, but by focusing on the function and program of buildings. OSA’s members believed that only by carefully studying the new daily needs of workers could new programs and new architectural forms emerge.

Most of the OSA’s founding members, such as Moisei Ginzburg, Alexander Pasternak or Alexander Vesnin, were architects who grew up in upper class and educated families before the 1917 revolution. Pasternak, for example, came from an artistic family; his father was part of the Impressionist movement in painting, and his brother became a renowned novelist in the Soviet Union. OSA’s founding members studied in the major cities of the Soviet Union and had the opportunity to visit Western Europe, like Ginzburg, who studied fine arts in Milan. They therefore carefully examined academic standards and became familiar with the classist traditions of Western art and architecture. Despite their knowledge of the architectural canons, OSA’s members were eager to move away from the Beaux-Arts style and decided to embrace modern architecture.

OSA founding members, as educated individuals, could be referred to as part of a broader social group known as the intelligentsia.’ The intelligentsia in Eastern Europe emerged in the late eighteenth century and considered themselves to be public figures promoting progressive politics, culture, and artistic works. Living in cities, the main function of the intelligentsia was to produce knowledge as journalists, scientists, academics, writers, or artists, distinct from any ruling class, whether monarchy or aristocracy. The intelligentsia was also known for extending their function into a social mission. They believed that their historical and scientific knowledge, as well as their contemporary political awareness, could be put at the service of the people. They challenged the existing political status quo with the aim of guiding people towards new progressive politics as well as egalitarian moral values. After the 1917 Bolshevik Revolution, the intelligentsia—including OSA members—who remained in the Soviet Union were inclined towards the socialist politics of the Bolshevik party. OSA founding members strongly believed that Soviet Russia would be the ideal place for a radical architectural and social reform. While in capitalist countries, the social purpose of the intelligentsia was inevitably relegated to second place, OSA members considered that intellectual knowledge could become an essential pillar for the construction of socialism.

A group of OSA’s members. From left to right, standing: Georgy Vegman, Kornfeld, unknown, Solomon Lisagor; seated: Alexander Pasternak, Moisei Ginzburg, Ivan Nikolaev.

From Selim O. Khan-Magomedov, Pioneers of Soviet Architecture (New York: Rizzoli, 1987), 572.

During its five years of intense activity, OSA’s first and longer period—from 1925 to 1929—mainly dealt with the term social condenser.’ This term, which gained wide popularity among Soviet architects, was used as an attractive and poetic signifier to emphasize what the new architectural programs and urban forms under socialism should become. The social condenser aimed to concentrate all the daily activities of workers in a single urban unit and highlighted the need for three primary programs: the factory (the place of production), the social club (the place of the intellect), and the communal house (the place of rest), known as dom-komuna. The social condenser also included a range of collective facilities such as a crèche, canteen, library, and sports hall that aimed to support workers’ daily lives in fulfillment of their duties.⁠ The communal house, as part of a broader urban unit—the social condenser—is the primary focus of this essay.

This essay is divided into two parts. The first focuses on the formalist origins and artistic influences of OSA, such as the pre-revolutionary Russian avant-garde. This section attempts to historicize OSA’s work from a formalist perspective, thus going beyond its common description as a talented modern movement autonomous from any artistic influence. It also aims to outline the social mission of the OSA by placing it in the broader context of the intelligentsia. The second portion focuses on the definition of the communal house according to OSA. Their proposal aimed to offer a pragmatic, ready-to-build solution to remedy the significant housing shortage that Soviet cities faced in the 1920s. According to OSA, housing was the most ambitious program of the social condensers and presented many challenges, such as the organization of housing within the framework of a socialist way of life and its potential mass production. OSA underwent two decisive stages of communal house research consisting of the 1927 Comradely Competition published in SA and the 1929 study commissioned by the official office Stroykom RSFSR—the projects from this research will be described in detail. These two stages of research seriously contributed to the establishment of the typological basis for the housing that would be built later as well as, more generally, for the collective affordable housing program that emerged in the twentieth century.

With these two sections, I aim to highlight a constant contradiction within OSA members’ work that stems from a difficulty in defining their social role as architects under socialism. In committing themselves to the design of housing types that aimed to be useful for the people and the party, they intended to betray their social origins, which emphasized the traditional figure of the individual bourgeois architect and its authorship through recognizable styles or gestures. From the late 1960s onwards, OSA’s experimental projects were rediscovered in Western Europe thanks to, notably, architectural historian Anatole Kopp and architect Rem Koolhaas, who popularized the term social condenser.’ They often emphasized OSA as a group of avant-garde architects who were too far ahead of the social conventions of their time. This allegedly led to their silencing by the authoritarian figure of Stalin. What follows is an attempt to challenge this view. My argument is that by considering OSA as victims of Stalinist repression, Western architecture implicitly defended the idea of the avant-garde architect as a free’ individual artist/architect at the service of the revolution. My intention is to counter this interpretation by revealing tensions and contradictions within the OSA’s extraordinary research on domestic space in relationship with premises of the socialist revolution.

PREAMBLE: THE FORMALIST ORIGINS OF THE AVANT-GARDE

AND THEIR SOCIAL MISSION

In their writings on the early Soviet avant-garde, Manfredo Tafuri and Pier Vittorio Aureli traced a formalist genealogy between the pre-revolutionary artistic movements in the Russian Empire of the 1910s and certain modern architectural associations, such as OSA, which embraced socialism after the 1917 revolution.⁠ Influenced by avant-garde movements of Western Europe such as Futurism, the main pre-revolutionary movements in Russia were Cubo-Futurism, represented by the poet Vladimir Mayakovsky and the painter Kazimir Malevich, and Russian Formalism, the primary figures of which were the literary theorist Viktor Shklovsky and the writer Osip Brik. Tafuri and Aureli argued that this avant-garde art was an attempt to return to the very essence of an artistic practice consisting of reflections on form itself rather than on what it represented. This attempt ran counter to a broader and well-established artistic movement: figurative art using conventional visual codes—such as perspective—to represent events in life. In this sense, figurative art used a familiar and common artistic language that was no longer perceived as such. For the pre-revolutionary avant-garde, on the contrary, artistic language was expected to be more opaque and therefore potentially autonomous from any institutional linguistic codes. The goal was to develop a specific language for art in which new signifiers could constantly be invented and as result could create new perceptions in everyday life. The mid-1910s Counter-Reliefs series by avant-garde artist Vladimir Tatlin was an attempt to reformulate new signifiers in an incoherent and almost absurd way by clashing different industrial objects together. Malevich’s suprematist movement attempted to return to the very origin of a signifier detached from any cultural referent, thus aiming to reach a pure sign,” as Tafuri has argued.⁠ The abstraction that came out of those artworks was a prerequisite for focusing on form itself and therefore on the invention of new signifiers and perceptions. However, if the abstract forms of the pre-revolutionary avant-garde challenged formal artistic conventions, their position on the social role of the artist was more traditional. Indeed, in asserting the specificity of an artistic language, they implied the status of the author as an individual whose work could be understood as autonomous from any social conventions. This echoed the artist’s status in a bourgeois society in which artists could criticize society positively or negatively with a degree of detachment and therefore explore the realm of ideas and aesthetics separate from any material or productive labor.

Left: Vladimir Tatlin, Corner Counter-Relief, 1915.

Right: Kazimir Malevich, Black Circle, ca. 1913.

From Manfredo Tafuri, Il socialismo realizzato e la crisi delle avanguardie,” in Socialismo, città, architettura, ed. Manfredo Tafuri (Rome: Officina, 1971), fig. 1, 12.

It was precisely this ideology of the artist as individual creator that was at odds with the choice made by pre-revolutionary avant-garde artists and architects to commit themselves to the cause of the Bolshevik party after 1917. In order to overcome this contradiction certain avant-garde artists aimed to translate their abstract art into propaganda to promote a new socialist culture, while other movements such as constructivism showed support to the Bolshevik party by addressing a common project for artistic and industrial production.⁠ Launched in the early 1920s by art theorists and artists such as Aleksei Gan, Alexander Rodchenko, and Varvara Stepanova, the constructivist movement claimed that arts like sculpture, painting, and architecture should have a social purpose by inserting them into an industrial production. As Aureli has argued, constructivist designs aimed to go beyond subjective artistic choices and followed a more rational process based on an industrial datum such as the economy of means or materials.⁠ However, constructivists kept the abstract language of the pre-revolutionary avant-garde. This language of abstraction was now legitimized by the conditions imposed by industry and mass production. The design of textiles—such as sports clothing by Stepanova—or furniture, such as the workers club built for the Soviet Pavilion at the 1925 Paris World’s Fair—was thus reduced to mere abstract geometric pattern. As a result, these simple and tectonic forms attempted to emphasize the repetition of basic mechanical movements of factory machines or of the standardization of industrial elements.

Left: Varvara Stepanova, designs for sports clothes, 1923.

Right: Alexander Rodchenko, model layout of a workers’ club in the Soviet pavilion, Paris International Exhibition, 1925.

From Khan-Magomedov, Pioneers of Soviet Architecture, 157, 162.

The work of OSA should be understood as the attempt to translate the constructivist critique of formalist ideas into architecture. Connections existed between constructivists and OSA, as Gan was one of the founders of constructivism and the graphic designer of OSA’s SA magazine. Yet, in spite of their explicit social approach, the architectural sensibility of OSA’s members was also rooted within formalism. Indeed, in 1923, Ginzburg wrote his first significant book called Rhythm in Architecture and had, later, decisive impacts on the formal aspects of OSA projects.⁠ His essay mainly aimed to define an architectural language primarily based on the rhythmic composition of building elements such as columns, windows, or walls. This book attempted to demonstrate that, once stripped of all Beaux-Arts styles, architecture would possess intrinsic’ spatial and aesthetic qualities based on rhythm. After a pure formal study of canonical buildings in the history of architecture, Ginzburg proposed a series of diagrams called Transcription of Rhythms” that aimed to abstract canonical buildings into a rhythmic language. For instance, figure V echoed the alternation between small and large columns in the Basilica Palladiana designed by Renaissance architect Andrea Palladio in Vicenza, while figure IV reflected the fifteenth-century Palazzo Vendramin Calergi in Venice. Composed simply of short lines, these diagrams attempted to codify rhythms into different variations, from the most refined to the most complex. Yet Ginzburg’s essay was not a revival of classical architecture but rather highlighted the possibility of defining a specific language for architecture autonomous from any artistic styles and periods. No longer needing to simulate a culturally familiar architectural language—such as the classical style—architecture could establish its own formal language based on an abstract interplay of architectural elements, thus echoing the specific artistic language of the pre-revolutionary avant-garde. However, for Ginzburg, this abstract language fulfilled three pragmatic and functional conditions that were prerequisites for architecture under socialism.

Moisei Ginzburg, Transcription of Rhythms,” diagrams.

From Moisei Ginzburg, Rhythm in Architecture (London: Artifice Press, 2017), 65.

Moisei Ginzburg, perspective views of the Basilica Palladiana in Vicenza and the temple of Concordia in Agrigento.

From Moisei Ginzburg, Rhythm in Architecture (London: Artifice Press, 2017), 43, 53.

Firstly, this language, based on the repetition of architectural elements, embraced one of the characteristics of industrial production, namely the seriality of prefabricated objects, and thus considered this new modern condition as essential asset. Secondly, it ensured that architecture followed an economy of means without excessive use of materials for styles and ornamentation. This economy of means was a prerequisite considering the material shortages and the weak economy that the Soviet Union faced after years of civil war. Thirdly, this new’ aesthetic idea aimed to be the emblem of a new’ way of life, in line with the collectivist precepts of socialism. As a result, like constructivist artists, Ginzburg and OSA’s members intended to propose a common project for architecture and industrial production. While maintaining an abstract language, constructivists and OSA members now aimed to be socially engaged in the economy and production. As a result, Tafuri argues, the OSA and constructivists will see Soviet Russia as the country where utopia has been realized, the ideal place for organizing economic development, the state in which it becomes possible to realize the dream of intellectual labor regaining its role as the ethical and technical guide of machinist civilization.”⁠ Indeed, in line with the traditions of the intelligentsia, OSA aimed to put their knowledge of modern architecture at the service of the people and the party. Aligned with socialist development, they believed that their social mission was to face collective topics and therefore to enter into more technical and social issues. One program in particular, housing, was of considerable importance given the crisis situation in which the country found itself.

RATIONALIZING HOUSING CONSTRUCTION

From 1918 onwards, the Bolshevik party issued decrees—such as the Decree on the Nationalization of Land and the Decree on the Abolition of Private Real Estate Property in Cities—that made it possible to requisition and nationalize large bourgeois dwellings to house large numbers of people. These dwellings, called kommunalky, were transformed into shared accommodation for several families. However, in the face of high demand for rehousing, families in these kommunalky were often crammed into a few bedrooms and shared common areas such as the kitchen and bathroom, frequently in poor sanitary conditions. In addition, the New Economic Policy (NEP)—a reform launched in 1922 by the party allowing foreign private capital to invest money in companies in the Soviet Union—started to revitalize the economy and industry. As a result, many people from the countryside moved to the cities, increasing the already urgent need for new housing. In 1927, Georgy Vegman, a leading figure of OSA, published in SA an analysis showing that the party was unable to achieve its goal of providing at least 9 m² of living space for every inhabitant.⁠ Through data analysis, Vegman emphasized that even though the state was building new housing in Moscow, this was not enough to absorb the new population moving in the capital. This resulted in the fact that the living space was only 5.2 m² per person, making living conditions extremely cramped. Considering this heavy housing shortage, OSA thought that a rational way of building mass housing while preserving spatial qualities was possible.

As Milka Bliznakov recalled, OSA was familiar with the large housing neighborhoods called Siedlungen built in Frankfurt in the early 1920s.⁠ As the head of the city office, architect Ernst May directed this mass housing plan. For OSA, the Siedlungen were essential case studies because they followed an industrial process involving the use of prefabricated elements, thus attempting to lower the building cost. Moreover, the apartments were based on standardized types that conciliated good balance between spatial quality and spatial efficiency. Apartment types were then rationalized by optimizing the size of utility areas, such as those in the kitchen—the so-called Frankfurt Kitchen’ designed by architect Margarete Schütte-Lihotzky that drastically reduced its size while making it even more functional. For the OSA, if the Siedlungen followed rational design methods required in a capitalist country for the construction of low-cost housing, these methods could be transposed to a socialist country facing shortages and a weak economy. Although the Siedlungen provided technical knowledge on housing, for the OSA these housing types promoted an overly petty bourgeois lifestyle based on individualistic values and the privatization of domestic space. A more collective housing type—the dom-komuna—could result in even more efficient apartments while promoting socialist values.

COMMUNAL HOUSE AS AN INSTITUTION

The term dom-komuna could be literally translated as house-commune’ and aimed to combine in one word the intimacy of the household with the collective scale of communal activity. Like the term social condenser,’ dom-komuna was widely used by Soviet architects during the 1920s. It was employed as an appealing signifier to emphasize that collective housing could now become the incubator for new social customs which would gradually develop a socialist ethos. In that sense, OSA’s members often referred to the term noviy byt, which can be translated as new way of life.’ They claimed that housing could instill a new socialist way of life where domestic matters became more public. In an SA article published in 1930, Nikolai Kuzmin, an OSA member, quoted a speech Vladimir Lenin delivered at the 1919 Fourth Conference of Moscow Workers. Lenin suggested that, in the communal house, domestic life should move away from being solely a private family concern and take on a more institutional character: We will create model institutions, canteens, day-care centers, nursery schools, that will relieve women of domestic cares. … these institutions … will be created wherever the slightest possibility exists.”⁠ The communal house as an institution reflected that a social organization, such as the state, a syndicate, or a factory company, could support and organize the worker’s daily life within housing projects that were often designed for hundreds of people. This organization was supposed to be responsible for preparing and distributing food, caring for children, cleaning clothes, and for the well-being of the workers. In other words, these institutions planned to collectivize most of the reproductive labor of workers. This meant that the everyday domestic duties of workers, which were mainly carried out by women in a capitalist society, were now the responsibility of an institution. Taking reproductive labor out of the private sphere implied, therefore, a challenge toward two deeply entrenched social habits: the status of the housewife, who was now expected to produce like any other worker, and the status of the family as the central entity of the household, which was now being displaced by collective activities.

The fact that an institution provided support for residents’ daily lives and offered places to relax within the building complex itself was reminiscent of the residential hotel program that emerged in the United States in the late nineteenth century.⁠ Implemented mostly in San Francisco and New York City, these residentials hotels provided a form of accommodation based not on owning but inhabiting a flat for an unlimited period, ranging from one week to several years. The Shelton Hotel, built in 1924, was a residential hotel in New York City that catered to an upper-middle-class clientele. The public facilities, such as the restaurant and lobby, were located on the ground floor, while the apartments were located on the upper floors of the skyscrapers.⁠ Thanks to these public facilities, the apartments were smaller in size—this interested Ginzburg in particular, who later published an article in SA referring to residential hotels.⁠ All furniture—such as wardrobe, bed, or table—was provided in the rooms, which meant that guests did not need to own any domestic equipment, thus allowing for a more flexible lifestyle. Moreover, in the residential hotels, a variety of room types, from single rooms to couple and family apartments, were available, thus hosting a diversity of social statuses without promoting a specific type of lifestyle such as that of the nuclear family. Hosting various social statuses was also of great interest in the communal house, with the aim of meeting the different needs of the population and challenging the importance of the family household. However, the place accorded to the family apartment within this institution was a subject of debate among OSA’s members.

THE EMERGENCE OF THE TRANSITIONAL HOUSING TYPE

In the socialist ideology, the family was considered to be a structuring aspect of bourgeois society. Indeed, capital was passed down through bloodlines, thus leading to a hierarchy within social classes. For the more militant architects, such as Kuzmin, the institutional character of the communal house would undermine the economic necessity of the family. Conventional family apartments could therefore be canceled in the communal house, leading to a family-less society. For other OSA members, such as Ginzburg and Pasternak, it was necessary to consider existing mentalities—influenced by the previous capitalist structures—which were more inclined toward family life. In Town and Revolution, Kopp defined more radical and militant thinking as the supercollectivization of life.”⁠ One of the most famous projects was the 1929 communal house project by Vyacheslav Vladimirov and Mikhail Barshch, both members of the OSA.⁠ Planned to house 1,000 adults and 680 children, this project intended to separate children from their parents, thus highlighting the individual and collective dimension rather the family one. This division took the form of a cross-shaped building: one linear bar was reserved for children and included dormitories, a nursery, and auditoriums for the school, while the other bar was for adults and included single bedrooms, a canteen, and common areas such as a library.

Mikhail Barshch and Vyacheslav Vladimirov, project for a communal house, 1929, axonometric view.

From Stroykom RSFSR, ed., Tipovyye proyekty i konstruktsii zhilishchnogo stroitel’stva, 54.

Mikhail Barshch and Vyacheslav Vladimirov, project for a communal house, 1929, 5th-floor plan.

From Stroykom RSFSR, ed., Tipovyye proyekty i konstruktsii zhilishchnogo stroitel’stva, 51.

For Ginzburg and Pasternak, the supercollectivization of life” projects were feasible only once socialist culture was firmly established in society. For them, the Soviet Union was in transition towards socialism, both economically and in terms of people’s mentality, and that, as a result, a transitional way of living had to be designed. As Ginzburg said in a very humble way, they considered their social mission to be extremely pragmatic and rooted in the current economic situation and mentalities: It is impossible at present to compel the occupants of a building to live collectively, as some of us have intended to do in the past, usually with negative results. We considered it absolutely necessary to incorporate certain features that would stimulate the transition to a socially superior life—stimulate, not dictate.”⁠ Ginzburg and Pasternak aimed, therefore, to stimulate this gradual social transformation by proposing, for the domestic sphere, what they called a transitional housing type.”⁠

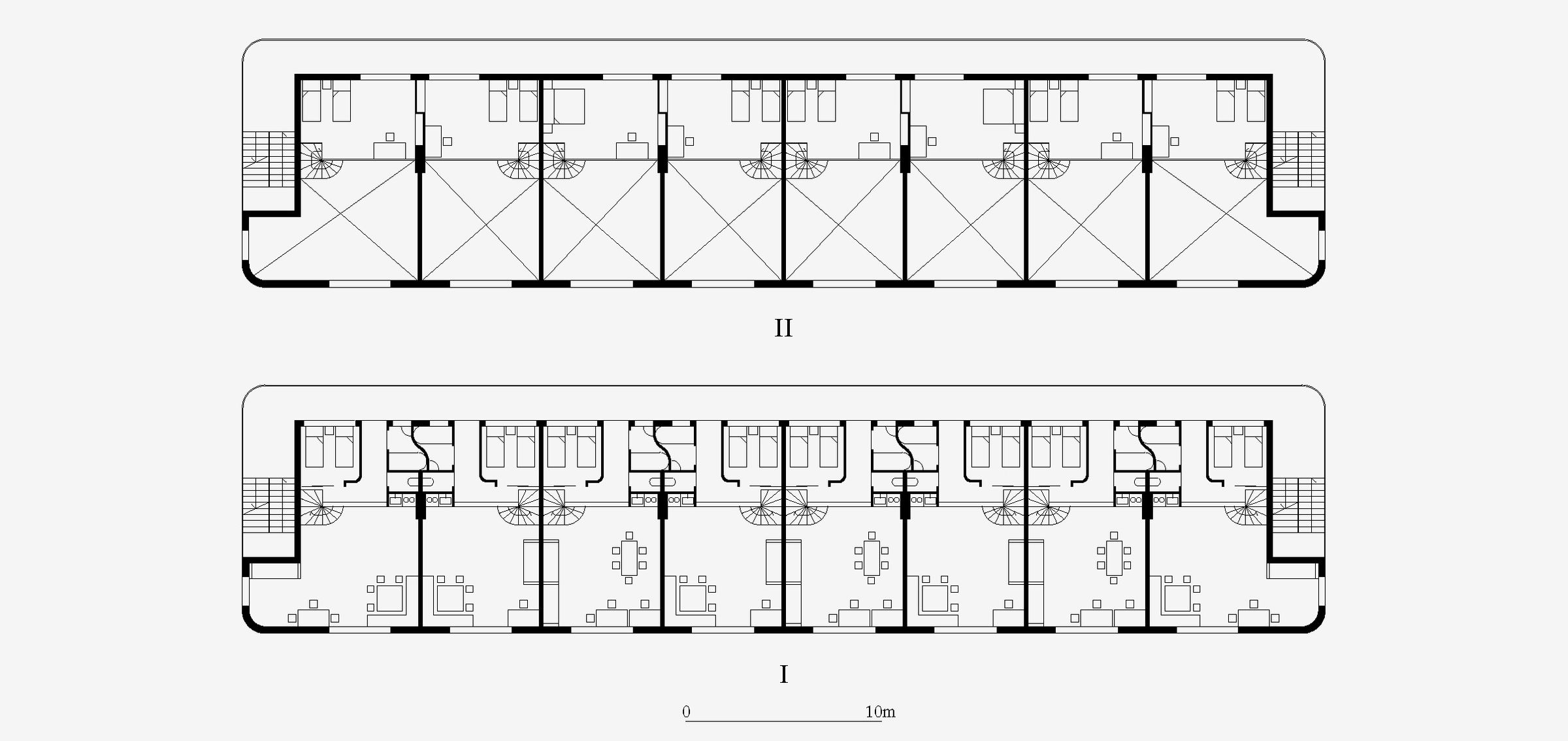
In his 1927 article New Forms of Contemporary Housing,” published in SA, which introduced the projects of the Comradely Competition, Pasternak provided a description of what transitional housing should be.⁠ He insisted that the family shouldn’t be dissolved and thus displaced to dormitories and single bedrooms, yet the prevalence of private traditional apartments could no longer exist. As a result, Pasternak emphasized the term residential unit’ to define the primary new flat type in the transitional housing. The residential unit was intended for couples or small families and aimed to conceal a private space for the family. Yet because of its small size, the residential unit also encouraged its decentralization in favor of collective activities hosting a more generous communal kitchen or recreational area. Thus, the residential unit would allow occupants to avoid the nightmare shared-flat situations like those of the kommunalky, since a private space was guaranteed. Moreover, it ensured an optimal use of material by providing the minimal private space for units, which were then offset by the collective areas. The OSA’s position on the residential unit was therefore intended to be more practical than the supercollectivization of life” projects, taking into account the existing mentalities and the housing shortages that faced the country. Through the projects of the Comradely Competition, the OSA’s members attempted to design case studies that exemplified their conception, both on an urban and architectural scale.

THE COMRADELY COMPETITION:

FORM AND EFFICIENCY

In 1927, SA published the results of the Comradely Competition, the sole requirement of which was to design a communal house.⁠ This competition was self-commissioned by the OSA and attempted to raise awareness of their position on transitional housing type in the public debate. This competition featured eight different projects by Ginzburg, Alexander Nikolsky, Andrei Ol, Pasternak, Raisa Polyak and Nina Vorotyntseva, Ivan Sobolev, Vegman, and Vyacheslav Vladimirov, all members of the OSA.⁠ As Daniel Movilla Vega has observed, these eight entries were exhibited as part of the first international architecture exhibition by the constructivist architects at Vkhutemas and occupied an entire room, thus suggesting the importance of these projects for the OSA’s members.⁠

On an urban scale, the eight projects shared a common building form: the linear bar. This specific form made it possible to concentrate many people in a single building, thus resulting in the formation of social condensers made up of other programs, such as the factory and the social club. While five projects—by Ol, Polyak and Vorotyntseva, Sobolev, Vegman, and Vladimirov—proposed an urban-scale design based on the repetition of housing bars, three other projects—by Ginzburg, Nikolsky, and Pasternak—focused solely on designing a single communal house. In their urban form, the former five projects stressed the importance of the buildings as the main agents to shape outdoor public spaces. Abandoning the common idea of a city made of streets and blocks or the garden city theory—which grouped several small collective housing blocks or individual houses within a low-density suburban fabric—these fives projects aimed to condense many imposing buildings that gave form to a well-composed urban unit. The building-as-urban-unit was reminiscent of the Phalanx, a built entity within the territorial complex of the Phalanstère, developed by French philosopher Charles Fourier over several years during the early nineteenth century. Concentrating a large number of people (1,800) and essential programs for the workers’ daily lives, the Phalanx took the appearance of a large palace that, thanks to the building form, defined public symmetrical urban axes as well as exterior courtyards.⁠ According to Bliznakov, the Phalanx corresponded to a miniature town without open streets.”⁠

Left: Ivan Sobolev’s entry for the Comradely Competition, 1927, perspective view.

Right: Raisa Polyak and Nina Vorotyntseva’s entry for the Comradely Competition, 1927, urban plan and axonometric view.

From SA, no. 4–5 (1927): 136, 143.

Left: Georgy Vegman’s entry for the Comradely Competition, 1927, plan and axonometric view.

Right: Vyacheslav Vladimirov’s entry for the Comradely Competition, 1927, urban plan and axonometric view.

From SA, no. 4–5 (1927): 133–135.

Emphasizing a well-composed urban unit, the projects of Sobolev—who proposed the largest urban complex of the eight projects—and Ol consisted of symmetrically arranged housing bars that framed a large primary public axis. For Sobolev’s project, this area, dedicated to collective activities, included green areas and a sports field. Recalling classic urban forms, the perspective of these large axes ended with the collective activity building, a highly symbolic gesture intending to place the community at the heart of the complex. Beside the urban axes, both Vegman and Sobolev proposed a linear repetition of housing bars, which were all connected by heated walkways. Bringing the apartments closer to the communal spaces, these walkways reinforced the appearance of an urban unit functioning as a closed system intended to meet all the needs of daily life. In that sense, Vegman—who designed this project for 4,500 people—was the one who most stressed the urban unit as a system managed by a social organization, reminiscent of residential hotels. Vegman said: Residents … can manage their own households or use the neighborhood’s communal services (by subscription).”⁠ As a result, residents could either eat at the restaurant on the top floor—where all communal activities took place—or ask the social organization to deliver their meals to their residential unit as well as taking care of their laundry. Walkways could therefore be used by the organization to facilitate the flow of goods and thus highlighted the role of the social organization in the management of the residential hotel’ extended to an urban scale. Among the five urban-scale projects, that of Vladimirov—who was building the Workers Club of the Compressor Factory in Moscow at that time—proposed a project having as a distinctive feature a more flexible and built-through-time urban form. He sketched out the beginnings of a metabolist architecture based on a vertical circulation module serving a series of dwellings. These modules could be assembled in different ways so as to adapt to the site and remained flexible in accommodating the building’s potential growth. Assembled, these modules could offer a linear housing bar, a bar with indentations, or even a more organic shape, thus creating different possibilities for the shape of the open space.

Moisei Ginzburg’s entry for the Comradely Competition, 1927, physical model.

From SA, no. 4–5 (1927): 131.

While some projects, such as those of Sobolev, Polyak and Vorotyntseva, and Ol, implemented the collective areas outside the communal house, some projects, such as those by Ginzburg, Pasternak, Vegman, and Vladimirov, designed the collective areas within the dwelling, thus emphasizing its collective dimension. Pasternak and Vladimirov implemented collective spaces like the communal kitchen, dining room, and teaching room on the ground floor to allow direct access when people left or entered the building. Ginzburg divided collective activities between the ground floor—housing a crèche— and the top floor—hosting a restaurant and a recreation room. The top-floor activities were located on an indoor bridge that marked the meeting point between the two parallel housing bars. A very peculiar feature in housing, this bridge was intended as a symbolic element emphasizing where the collective met. This bridge recalled Ginzburg’s interest in formalism; the physical model photographs attempted to depict his project as a spatial composition rather than as a building as such. Indeed, reminiscent of the Prouns series of paintings by the avant-garde artist El Lissitzky, Ginzburg’s project consisted of an abstract interplay of surfaces where the bridge penetrated the parallel housing bars and the staircase block.

Alexander Pasternak’s entry for the Comradely Competition, 1927.

I, plan of the 1st floor; II, plan of the 2nd to 5th floors.

Graphic reconstruction based on SA, no. 4–5 (1927): 130–145, and Daniel Movilla Vega Housing and Revolution,” Architectural Histories 8, no. 1 (2020): 4. Drawing by the author.

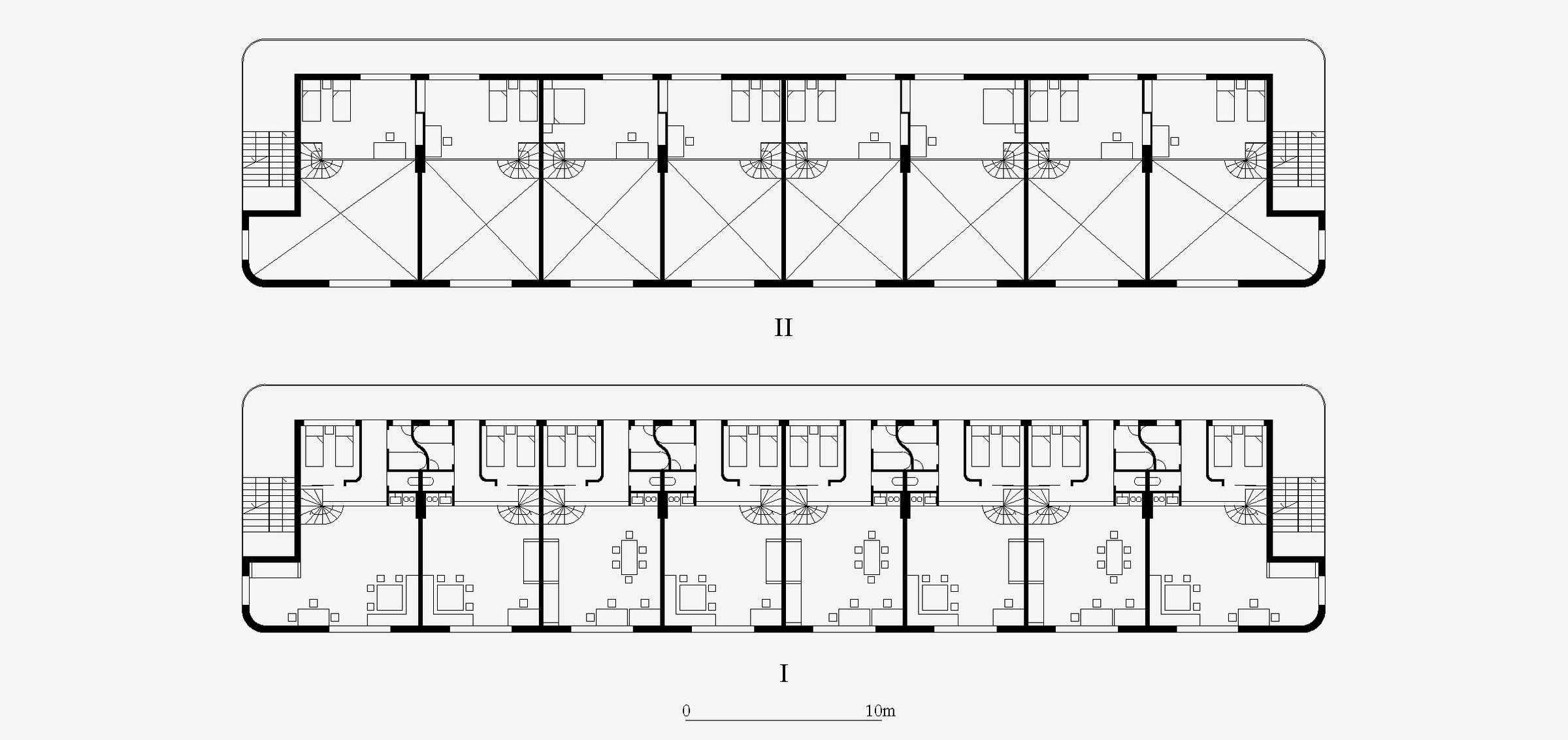
Georgy Vegman’s entry for the Comradely Competition, 1927.

I, typical lower level plan; II, typical upper level plan.

Graphic reconstruction based on SA, no. 4–5 (1927): 130–145, and Daniel Movilla Vega Housing and Revolution,” Architectural Histories 8, no. 1 (2020): 4. Drawing by the author.

Raisa Polyak and Nina Vorotyntseva’s entry for the Comradely Competition, 1927.

I, typical lower level plan; II, typical upper level plan.

Graphic reconstruction based on SA, no. 4–5 (1927): 130–145, and Daniel Movilla Vega Housing and Revolution,” Architectural Histories 8, no. 1 (2020): 4. Drawing by the author.

Alexander Nikolsky’s entry for the Comradely Competition, 1927.

I, typical lower level plan; II, typical upper level plan.

Graphic reconstruction based on SA, no. 4–5 (1927): 130–145, and Daniel Movilla Vega Housing and Revolution,” Architectural Histories 8, no. 1 (2020): 4. Drawing by the author.

Moisei Ginzburg’s entry for the Comradely Competition, 1927.

I, plan of the 4th floor; II, plan of the 5th floor.

Vyacheslav Vladimirov’s entry for the Comradely Competition, 1927.

I, typical lower level plan; II, typical upper level plan.

Graphic reconstruction based on SA, no. 4–5 (1927): 130–145, and Daniel Movilla Vega Housing and Revolution,” Architectural Histories 8, no. 1 (2020): 4. Drawing by the author.

Ivan Sobolev’s entry for the Comradely Competition, 1927.

I, typical lower level plan; II, typical upper level plan.

Andrei Ol’s entry for the Comradely Competition, 1927.

I, plan of the 1st floor; II, plan of the 2nd floor.

Graphic reconstruction based on SA, no. 4–5 (1927): 130–145, and Daniel Movilla Vega Housing and Revolution,” Architectural Histories 8, no. 1 (2020): 4. Drawing by the author.

In his SA article, Pasternak divided the eight projects into two categories according to their horizontal or vertical circulation as related to the residential-unit scale.⁠ The horizontal circulation took place either through long indoor or outdoor galleries or through central corridors, which thus generally limited housing bars to only two staircases. The projects of Ginzburg, Ol, Vorotyntseva and Polyak and Sobolev were based on horizontal circulation. On the other hand, the projects of Vegman, Vladimirov, and Nikolsky were structured around repeated vertical circulation. Pasternak emphasized that the choice of the circulation had a decisive impact on the layout of an apartment. Indeed, in terms of surface efficiency, the horizontal circulation favored the repetition of narrow and small-sized residential units in order to squeeze as many as possible along the corridor’s length, while the vertical circulation was more appropriate for large flats in order to make a staircase block more profitable.

Ginzburg, Vorotyntseva and Polyak, and Sobolev proposed in their horizontal circulation projects to introduce double-height spaces in the units. The double height allowed them to conceal the narrowness of the units with a larger apartment surface split on two floors while ensuring a certain spatial quality. In that sense, even though the apartment had to be narrow, the double height mitigated this perception by giving the flat a more vertical proportion. Ginzburg, Vorotyntseva and Polyak, and Sobolev made three different uses of the two stories. For Ginzburg, the central horizontal circulation was repeated every two floors and served a walk-through apartment with a double-height living room, a bedroom, a bathroom, and a kitchenette.⁠ For Sobolev, the horizontal circulation of the building was repeated every three floors to serve double-height apartments spread above and below the corridor, reminiscent of Le Corbusier’s Unité d’Habitation, notably built in Marseille twenty-five years later. For Vorotyntseva and Polyak, the project, designed to be located in a region in the south of the Soviet Union, allowed outdoor galleries that served double-height apartments for small families.

Moisei Ginzburg’s entry for the Comradely Competition, 1927, section and axonometric view.

From SA, no. 4–5 (1927): 130.

Georgy Vegman’s entry for the Comradely Competition, 1927, axonometric view.

From SA, no. 4–5 (1927): 132.

Vyacheslav Vladimirov’s entry for the Comradely Competition, 1927, sections and axonometric view. From SA, no. 4–5 (1927): 135.

Of the vertical circulation projects, Vladimirov’s optimized extremely effectively the circulation surface by serving the high number of six apartments per floor—four in the main bar and two in the separate block half-a-level above. Despite the large apartment distribution, the spatial quality of the unit was maintained by preserving a transversal natural ventilation. The unit’s layout was based on a two-story apartment that was staggered with another one, thus ensuring a bedroom in duplex and a double-height living room. On the other hand, Vegman’s vertical circulation served only two units per floor. Yet the apartment layout—designed for a couple or a small family—aimed to save space and material by compressing usable areas on top of each other, with a ceiling height of only 2 m. This allowed the liberation of more space to provide a generous height of 4.3 m for the living room. The result of this housing layout was an extremely sophisticated section and plan in which apartments were placed in a staggered pattern with different floor heights. Moreover, again reminiscent of residential hotels, Vegman pointed out that each flat came with all furniture, including the kitchen fixtures, tables, folding chairs, and beds.⁠

Alexander Pasternak’s entry for the Comradely Competition, 1927, elevation.

From SA, no. 4–5 (1927): 135.

Pasternak was the only one that incorporated both vertical and horizontal circulation into his project. This layout allowed the design of different types and sizes of apartments—from single rooms to three-room apartments—thus taking into account the diversity of the population’s needs. The layout of the first floor was based on a central horizontal corridor serving single bedrooms on both sides, each with a kitchenette and a washbasin. From the second floor, more traditional apartments were designed for families. To optimize space, utility areas were reduced to a minimum. This led to a reduction of bathroom and kitchen rooms into cabins in direct relation to the entrance hall, while beds were placed in alcoves to free up the room for other uses during the day. Pasternak claimed to offer a practical and ready-to-build solution that was perfectly suited to economic constraints and social challenges. As compared to the other eight projects, Pasternak avoided any interior sophistication such as split levels, heated walkways, or complex staggered apartments. From the exterior, the project’s façade simply reflected the functions that took place inside. It thus avoided any abstract aesthetic considerations or symbolic elements such as large urban axes. Having a ready-to-build project in mind, it wasn’t a coincidence that Pasternak ended his article by addressing the party: It is undeniable that such an institute, studying all contemporary construction issues (technology, standardization, …), … planned on a large scale, would undoubtedly lead the State to extreme economy, better technical organization, and innovation in all areas of construction.”⁠ Anticipating the Stroykom RSFSR commission, Pasternak and the OSA emphasized their commitment to housing construction in the Soviet Union, which nevertheless could only be initiated by the state and the party.

STROYKOM RSFSR:

THE POSSIBILTY OF A MASS HOUSING PLAN

The Stroykom RSFSR, which was an abbreviation for Construction Committee of the Russian Soviet Federative Socialist Republic, was an official office within the state apparatus in charge of supervising and rationalizing the sector of construction in Soviet Union. In 1928, the Stroykom created the Standardization Department, requesting research on the standardization of housing in the Soviet Union. Ginzburg became the main coordinator of this research, accompanied by a team consisting of Barshch, Pasternak, Grigory Sum-Shik, and Vladimirov.⁠ The Stroykom research led to the release of a publication in 1929 called Types of Projects and Standards for Housing Construction, Recommended for the Year 1930. Of the eight participants in the Comradely Competition, three were in the Standardization Department team, which established a significant connection between these two stages. However, while the previous stage involved a competition self-commissioned by the OSA, here it was the party that commissioned a study. Thus, Ginzburg’s team was temporarily engaged by the state to provide an analysis of the current housing situation and to advise the party on housing standardization.

Left: Cover of the 1929 publication Tipovyye proyekty i konstruktsii zhilishchnogo stroitel’stva, rekomenduyemyye na 1930 g [Types of Projects and Standards for Housing Construction, Recommended for the year 1930], developed by the Standardization Department at Stroykom RSFSR, 1929.

Right: Graph comparing the surface efficiency of the six different appartement types, developed by the Standardization Department at Stroykom RSFSR, 1929.

From Stroykom RSFSR, ed., Tipovyye proyekty i konstruktsii zhilishchnogo stroitel’stva, 15.

Diagrams and graphs showing the optimal light exposure of a room depending on the vertical or horizontal orientation of the windows, developed by the Standardization Department at Stroykom RSFSR, 1929.

From Stroykom RSFSR, ed., Tipovyye proyekty i konstruktsii zhilishchnogo stroitel’stva, 24–25.

This commission was part of a broader economic and political change taking place across the entire country: the First Five-Year Plan. Launched in 1928 by the party and directed by Stalin, the Five-Year Plan was a multi-year program based on central economic planning throughout the USSR. By setting production targets, the party aimed to give a vision to the overall production and economy of the country. As Rita di Leo argues, the First Five-Year Plan was a way for the party to build socialism through the industrialization of the country based on the nationalization of the means of production and distribution.”⁠ In particular, the First Five-Year Plan aimed to boost the heavy industries, such as coal and electricity production, at the expense of light industries, such as housing, agriculture, and textiles. As a result, from 1928 onwards, housing construction was gradually driven out of the Plan.⁠ For the OSA, on the contrary, housing construction could go hand in hand with the industrialization. The main argument of the Stroykom research was that housing could be industrialized by standardizing apartment types, thus allowing the mass production of housing. As a result, the Stroykom team attempted to reposition housing as a topic in the planned economy and aimed to raise the housing shortage and its possible solution with the institutional level of the party.

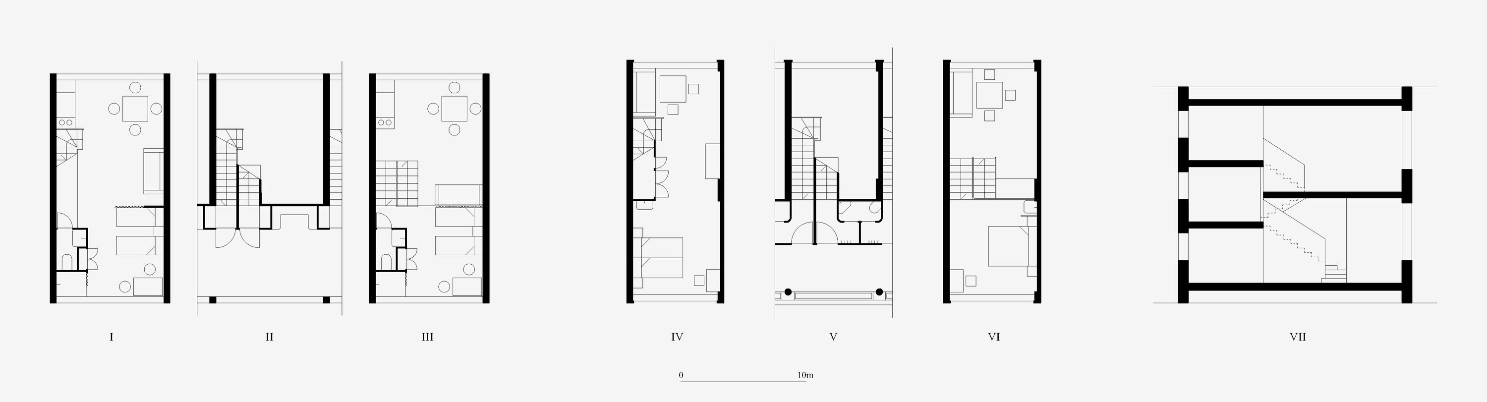
Following their research into transitional housing types, the Stroykom team focused the content of its publication on the technical aspects of housing involved in industrialization. Along those lines, the Stroykom team wrote, the practical value of this publication lies mainly in the fact that it will serve as a guide for the design and construction of residential buildings … for the year 1929–30.”⁠ Indeed, the Stroykom publication aimed to be used as a design and construction guide regarding the optimization of surface area and the standardization of units. The first part of the publication—on which I mainly focus— was titled Housing Typologies” and was based on the design of six standardized apartment types. These were types A, B, C, D, E, and F; each was a different size, from the single room to the more traditional apartment.⁠ The second part of the book was called Norm and Construction,” focused on the standardization of certain architectural elements—such as pillars, walls, slabs and windows—through the industrial process. This portion proposed an inventory of the most effective modern techniques available in the Soviet Union and aimed to promote them so that they would then become standardized nationwide. The result of the standardization was to speed up the construction process and, thanks to prefabricated elements, enable a large number of workers, even unskilled ones, to work on building sites.⁠

The design of the six types was explained through numerous calculations and graphs attempting to show that architecture could follow rational and scientific methods, thus embracing the economy of means. The most important graph compared the six types in terms of apartment surface efficiency. It aimed to prove that types A and B provided an optimized surface area for a flat measuring 40–50 m²—ideal thus for a family—while types C, D, and F were most effective for residential units measuring 20–40 m². This graph was based on the coefficient k,” a ratio resulting from dividing the volume of the unit by its utility areas—such as the bathroom, kitchen, and entrance hall. The lower this ratio, the more optimized the usable areas were, leaving more space for bedrooms and living rooms. Throughout the publication, each floor plan indicated this ratio, thus elevating coefficient k to serve as the most objective datum for the industrialization of housing.

STROYKOM RSFSR:

STANDARDIZABLE TYPES

Reminiscent of the Comradely Competition, the only building form used during this research was the linear bar. For the Stroykom team, this form made it possible to optimize the circulation surface area while ensuring that all residential units had transversal ventilation, thus improving their hygienic conditions and spatial qualities. As a result, these six types could be divided into two categories based on the horizontal and vertical circulation, as was the case for the Comradely Competition. While types A and B were designed with vertical circulation—resulting in large apartments—types C, D, E, and F were based on horizontal circulation and offered one- and two-room residential units. This research focused therefore mainly on residential units because according to a preliminary official study, 60% of the population needed a small-sized apartment, while only 40% of the population required a family flat.⁠ It thus encouraged the OSA to consider a variety of social statuses beyond only family apartment types.

Type A, developed by the Standardization Department at Stroykom RSFSR, 1929.

I, plan of the two-bedroom layout (A2); II, plan of the three-bedroom layout (A3).

Drawing by the author, adapted from Stroykom RSFSR, ed., Tipovyye proyekty i konstruktsii zhilishchnogo stroitel’stva, 67, 72.

Type B, developed by the Standardization Department at Stroykom RSFSR, 1929.

I, typical lower level plan; II, typical upper level plan; III, section.

Drawing by the author, adapted from Stroykom RSFSR, ed., Tipovyye proyekty i konstruktsii zhilishchnogo stroitel’stva, 71.

Type F, developed by the Standardization Department at Stroykom RSFSR, 1929.

Layout I, II, III includes a bathroom and a kitchenette while layout IV, V, VI has no kitchenette and share a bathroom with the neighbouring unit. I, typical lower level plan; II, typical corridor plan; III, typical upper level plan; IV, typical lower level plan; V, typical corridor plan; VI, typical upper level plan; VII, section.

Drawing by the author, adapted from Stroykom RSFSR, ed., Tipovyye proyekty i konstruktsii zhilishchnogo stroitel’stva 57.

Type E, developed by the Standardization Department at Stroykom RSFSR, 1929.

I, plan of the communal areas; II, plan of the bedrooms; III section, the hatch shows the communal areas.

Drawing by the author, adapted from Stroykom RSFSR, ed., Tipovyye proyekty i konstruktsii zhilishchnogo stroitel’stva, 63.

The layout of Type A consisted of daytime areas such as the kitchen, bathroom, and dining room, while the other side included relaxation areas like the living room and bedrooms. This layout was reminiscent of Pasternak’s project in the Comradely Competition which struggled above all to reduce the size of utility areas. In line with the Frankfurt Kitchen model, the Stroykom team showed, through the study of user movement patterns, that the typical traditional kitchen—estimated at 7.13 m²—could be reduced to 4.5 m², while increasing its ergonomics thanks to compact furniture. A kitchenette of 1.4 m² was also designed and took the form of a cupboard within which the kitchen could be completely concealed. Like a piece of furniture, it could be located in the living room, thus avoiding the need for a separate kitchen.⁠ Adapting to different family sizes, Type A proposed different versions—called A2, A3, and A4—offering two-bedroom, three-bedroom, and four-bedrooms apartments, while maintaining the same layout between daytime and relaxation areas.

Study for a space-efficient kitchen layout, developed by the Standardization Department at Stroykom RSFSR, 1929.

I, plan of a traditional kitchen (7.13m²); II, plan of a rationalized kitchen (4.5m²); III, plan of a cupboard-kitchen (1.4 m²); IV, axonometric view of a cupboard-kitchen.

From Stroykom RSFSR, ed., Tipovyye proyekty i konstruktsii zhilishchnogo stroitel’stva, 17, 19.

Using a split-level layout, Type B corresponded to a version close to Vegeman’s project, yet in a less sophisticated way. While on one side of the flat, the kitchen, dining room and bathroom had a reduced floor-to-ceiling height of 2.20 meters, the other areas of the apartment had a ceiling height of 2.95 meters. Thanks to this generous height, Type B proposed an upgrade in terms of spatial quality compared to traditional flats such as Type A. This layout could only be replicated in a staggered pattern with the flat above or below, thus doubling the pipes in the bathroom and kitchen. This issue, making the construction more complex, led the OSA to recognize that this type was more expensive and therefore should be built at a later stage in the realization of socialism.

The Stroykom team proposed fewer variations for types C and D. The layout of these types was arranged with horizontal circulation, such as an indoor or outdoor gallery, running along the longitudinal façade. Letting natural light in, these galleries held an important symbolic role within the Stroykom research, since they connected the apartments to collective spaces, which were now considered to be extensions of the residential unit. While the Type C gallery overlooked single-story units, the Type D gallery overlooked larger double-height units reminiscent of the Vorotyntseva and Polyak project. These two types were designed to be used in combination with Type A when horizontal circulation was necessary to connect collective activities. Thus different apartment sizes and social statuses could combine within one building, as in the Pasternak project.

Communal areas of a Type E building, developed by the Standardization Department at Stroykom RSFSR, 1929, perspective view.

From Stroykom RSFSR, ed., Tipovyye proyekty i konstruktsii zhilishchnogo stroitel’stva, 65.

Type E was intended for hostel or student residence programs and also demonstrated that it could be adapted for more militant communal houses—Vladimirov and Barshch’s project used this type for their supercollectivization of life” scheme.⁠ Type E was meant for only a single person and proposed the smallest unit (9 m2) designed by the Stroykom team. This unit could accommodate a single bed, a wardrobe, and a desk, while the bathroom and kitchen were shared, making it the type—among the six—with the highest degree of communal living. Type E cells were always part of a three-story module, with the middle floor hosting collective areas for bathrooms, kitchens, and a large communal space that could be used as a canteen. However, the Stroykom team recognized that this type was more complex to build, and therefore advised to building it at a later stage.⁠

Left: Perspective view of a Type F residential unit, 1934.

From Moisei Ginzburg, Dwelling: Five Years’ Work on the Problem of the Habitation (London: Fontanka, 2017), 136.

Right: Perspective view of circulation area in a Type F building, developed by the Standardization Department at Stroykom RSFSR, 1929.

From Stroykom RSFSR, ed., Tipovyye proyekty i konstruktsii zhilishchnogo stroitel’stva 56.

Type F was the best representation of a residential unit, as its small size—no more than 38 m²—meant that communal activities were a prerequisite for everyday life. Type F consisted of only one room, yet one that was extremely well-designed to host a couple or a small family. This was achieved by inserting a split level, creating a visual separation between the sleeping area—with a ceiling height of 2.2 meters—and the living room with its kitchenette—with a ceiling height of 3.45 meters. In his book Dwellings, Ginzburg emphasized the need for different heights to make the perception more spacious and directly impact resident uses: Small and large reveal their mutual qualities in a more pronounced way when they come into collision with one another. … when there is a need to concentrate, the feeling of a larger space pushed people towards the smaller space, while due to the limits of the smaller space the visual impression of the larger space seems essential when there is a need for movement and activity.”⁠ Moreover, Type F was recognized for significantly optimizing circulation areas. This was achieved by compressing the 2.2-meter-high horizontal circulation between the two low heights of the residential units. This technique made it possible to preserve the units crossing the building on its transversal side while allowing circulation to flow along the façade on the longitudinal building side. Type F thus succeeded in retaining a pleasant, sunny gallery while also providing small and transversal units.⁠ This type gained popularity in being notably used for the design of the Narkomfin building built by Ginzburg and Ignaty Milinis between 1928 and 1932 in Moscow. ⁠ Thanks to Type F, the Narkomfin became a built manifesto for the OSA, embodying a lifestyle in transition, and undoubtedly became a canonical building of the modern movement.⁠

SUBLIMATING INFRASTRUCTURE INTO ART

In designing these six types, the Stroykom team worked as single group producing research for the state. This differed from the Comradely Competition, in which each member developed projects individually, thus retaining the role of the architect as individual author. Indeed, in the Comradely Competition, the eight projects still highlighted formal expressions that were identifiable as the architect’s handiwork. This was evident in the abundance of extremely sophisticated apartment layouts, in large projects structured by a classical urban form, or in the effort to translate buildings into an abstract spatial composition. The Stroykom research superseded the Comradely Competition with a radical new design method based only on types. This design method had as its ultimate ambition the infinite reproduction of the types through an industrial process. Caught in a production cycle, these types could be adapted and mastered by anyone—whether the builder was the state, a factory company, or a syndicate. Through its multiple calculations and graphs, the Stroykom team emphasized that architectural form was no longer the result of an artistic gesture but based on an industrial outcome consisting of technical and rational parameters. In that sense, the automatic architecture resulting from the six types inevitably produced a certain anonymity of design and erased the work authorship. In order to help solve a housing shortage, the architects of the OSA aimed to produce a utilitarian kind of housing conceived as infrastructure to be built quickly and inexpensively. The anonymity of design was especially reflected in an OSA building called House of RZhSKT Rabochy in Saratov, built by Solomon Lisagor and Y. M. Popov. While the main building of this complex—a housing bar—was the outcome of the stark juxtaposition of several Type F units built in a rough manner, the façade simply expressed the linear repetition of these residential units through long windows. Yet, as Tafuri suggests, the rationalization of design could not escape a certain form of sublimation on the part of the OSA.⁠

Solomon Lisagor and Y. M. Popov, house of RZhSKT Rabochy in Saratov. Left: perspective view; right: view of the façade showing Type F residential units.

From Ginzburg, Dwelling, 135.

Unit Type F building prototype, developed by the Standardization Department at Stroykom RSFSR, 1929, elevations.

From Stroykom RSFSR, ed., Tipovyye proyekty i konstruktsii zhilishchnogo stroitel’stva, 62.

Unit Type F building prototype, developed by the Standardization Department at Stroykom RSFSR, 1929, axonometric view.

From Stroykom RSFSR, ed., Tipovyye proyekty i konstruktsii zhilishchnogo stroitel’stva, 62.

If, through typological design, the Stroykom team seriously challenged architecture’s authorship, this was also connected to the inexorable advance of industry and technology. Indeed, it confined architects to the use of limited pre-established architectural elements that challenged their potential for self-expression. Instead of adopting a reactionary stance, the OSA decided to assert itself by fully and positively embracing this new modern and mechanical era. Yet, the OSA’s acceptance of the industrial reification of architecture could only work through the sublimation of the utilitarian aspect of architecture—its infrastructural development—into something that was more artistic than mere technocracy. Although OSA members advocated that extrinsic means, such as machines, science, and industry, should become the guiding principles of architectural form, they remained attached to the idea that architecture retained an intrinsic formal language. Following from Ginzburg’s book Rhythm in Architecture, this new aesthetic was based on the pure perception of space composed of different rhythms of architectural elements. As a result, the façades of the prototypical Type F Stroykom building or the House of RZhSKT Rabochy were nothing more than simple and rudimentary alternations between long and narrow windows and horizontal wall surfaces. Inside, the corridor of the Type F prototypical building consisted of an intense rhythm of entrance doors accompanied by this long narrow window that calmed the visual perception. This attempt at composing space through a rhythmic language was reminiscent of the simple rhythms” (I, II, III) of Ginzburg’s Transcription of Rhythms” diagrams. Compared to the more complex rhythms such as the transmission or conjunction rhythm” (XII, XIII, XIV)—which already emphasized authorship too much for the Stroykom team—these diagrams stressed the most common rhythms thanks to lines of the same dimension and usually equidistant from each other. Following these diagrams, the language of the OSA was an attempt to highlight and make perceptible the most banal rhythms of architectural elements. This renewed perception could only come through a process of intense and unusual abstraction based on a minimal interplay of architectural elements. And this was where the sublimation resided: in elevating the ordinary architecture through an abstract language. For the OSA, this language guaranteed that everybody could master it, appropriate it, and identify with it since it required no historical knowledge and was the result of their industrial age. But this language also attempted to reiterate the intrinsic specificity of architecture and therefore was still in line with the formalist origins of the pre-revolutionary avant-garde. This was precisely what the party didn’t like about modern architecture: its lack of symbolism and cultural reference.

THE PARTY’S IDEOLOGY:

THE HARTRED OF THE INTELLIGENSTIA

From 1928 onwards, with the start of the Five-Year Plan, Stalin fully asserted his power at the head of the party. As di Leo notes, alongside the implementation of the planned economy, Stalin established an ideology intended to demonstrate this ongoing industrialization to the people.⁠ Two of the main ideological themes promoted by this turn of events were the establishment of the doctrine of the dictatorship of the proletariat’ and the eviction of the former upper social classes holding positions within the state apparatus in the 1920s. The dictatorship of the proletariat aimed to support workers’ access to the highest social positions in the Soviet hierarchy, therefore giving power to those who produced capital. At the same time, Stalinist ideology severely disqualified the bourgeoisie or the intelligentsia—some of whom even played important roles in the 1917 revolution—from a commitment to socialism by depicting them as the representatives of the capitalist economic system that Stalin wanted to terminate by introducing planned economy. In the early 1930s, the eviction of the state intelligentsia—which notably supported the OSA in granting commissions—led to a major divorce between modern architect associations and the party.⁠ This resulted in the forced closure of these associations—including the OSA—and their merging into a single association supervised by the party: the All-Soviet Architectural Scientific Society (VANO). However, the party not only took control of these associations, but also brutally repressed intellectuals whose opinions differed from party doctrine.⁠ The most tragic event illustrating this repression of the OSA was the 1935 deportation to the gulag of Mikhail Okhitovich, an OSA member, for defending the disurbanist movement which was no longer in line with the party’s doctrine. Okhitovich eventually died there in 1937.⁠

In L’expérience profane, di Leo details the divorce between the party and the intelligentsia.⁠ She explains that, even though socialism advocated a classless society, the former class distinctions of the capitalist system continued to shape current social relationships. In that sense, within the state apparatus, which was increasingly composed of former workers, a class conflict persisted in contact with the intelligentsia. Di Leo notes that the intellectual’s strangeness stemmed from his awareness that the intellectual was capable of thinking, leading, and administering better than the political leader [of working-class origin] to whom he transmitted his knowledge as a subordinate. The intellectual’s strangeness was the hidden face of the social upheaval that had taken place, the Achilles heel of the Soviet experiment, its intrinsic weakness.”⁠ The fact that the OSA believed in and shared their knowledge—deeply rooted in the tradition of the intelligentsia—could, indeed, be significantly perceived as a form of class contempt when in contact with the party and the workers. However, by committing itself to socialism, the OSA also attempted to challenge the prestige and social symbols of bourgeois intellectual status. Indeed, the OSA contributed to the evolution of the figure of the architect from its individualistic status as author to that of a mere civil servant who put his knowledge at the service of the party to resolve technical and social issues. Despite the OSA’s commitment, the party ignored its knowledge and, in doing so, also disregarded the housing crisis that was creating appalling living conditions for the Soviet people.

The establishment of Stalinist ideology was also accompanied by the rise of an artistic doctrine called socialist realism.’ With the establishment of this doctrine, Stalin decided to radically separate production, which was controlled by the party’s Five-Year Plan, from the ideology that was intended to glorify the planned economy through art and architecture. While the OSA aimed to integrate architecture into the Plan, emphasizing its utilitarian role within production, Stalin envisioned the potential of architecture as an Ideological asset to monumentalize the ongoing industrialization and therefore to assert his own power. The Seven Sisters, seven high-rise towers built in Moscow in the 1950s to house officials of the Soviet state apparatus, were the perfect example of monumental architecture. This architecture aimed at a popular revival of the classical architectural language by highlighting its well-known symbols, such as columns, pediments, and vertical proportions. It was precisely this classical language that the OSA sought to abstract into a rhythmic composition, yet in a way that was overly sublimated. After all, as in Martin Scorsese’s seminal movie from 1990, the OSA members were Goodfellas: As far back they could remember, they always wanted to be architects.”

AUTHOR

Romain Barth is an architect, scientific assistant of TPOD Lab. at the École Polytechnique Fédérale de Lausanne and member of the CNCRT collective. His research focuses on the history and theory of architecture, with a particular interest in architecture of the constructivist and socialist realist periods in the Soviet Union. His research has been published in Matières 17, Oase 114, and Burning Farm 16.

Download PDF
ISSN   2813 – 8058TPOD, EPFL